Rondostraat 139, 7534GM ENSCHEDE
Vraagprijs: € 335.000,- k.k.
Omschrijving
Aan de Rondostraat 139 in Enschede ligt deze unieke en riante woning. Het is een tussenwoning met een woonoppervlakte van 147 m² en bevindt zich op een ruim perceel met een oppervlakte van 156 m². De woning is gebouwd in 1980 en heeft een energielabel C.
De woning ligt in een rustige en kindvriendelijke wijk in Glanerbrug.
Gelegen op fietsafstand van het centrum van Enschede, loopafstand van een supermarkt. Verder is de eerste uitvalsweg in de nabije omgeving op 10 minuten rijden.
De wijk is ruim opgezet en bevindt zich nabij diverse voorzieningen zoals scholen en winkels.
Het betreft een bijzonder ruime woning met maar liefst 5 ruime slaapkamers en een nette badkamer op de verdiepingen. Op de begane grond een lichte en ruime woonkamer met toegang tot de achtertuin. De open keuken dient gemoderniseerd te worden. De vrij gelegen achtertuin is gelegen op zuidoost en heeft een achterom.
De woning is geschikt voor een handige klusser omdat deze vrijwel geheel gemoderniseerd dient te worden. Er is beslist iets moois van te maken.
Indeling:
Begane grond: entree, hal, meterkast, trapopgang, woonkamer met open keuken. Achtertuin met schuur, overkapping en achterom.
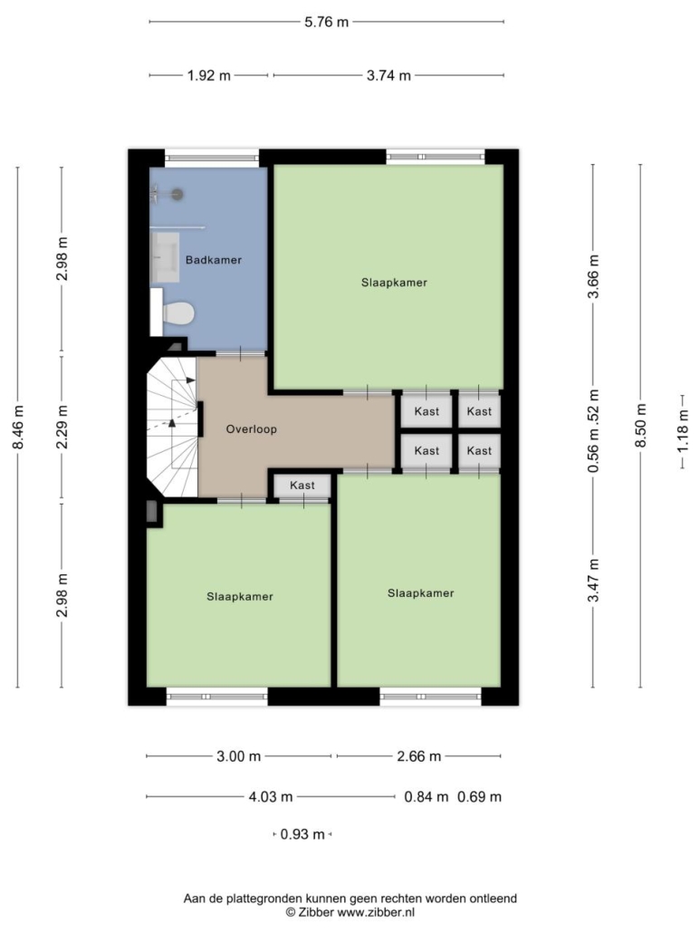
Eerste verdieping: overloop, badkamer met toilet, wastafelmeubel, douche en 3 slaapkamers.
Tweede verdieping: overloop met opstelling CV en 2 ruime slaapkamers.
Bijzonderheden:
- Kluswoning;
- Bouwjaar 1980;
- Gedeeltelijk dubbel glas;
- 5 slaapkamers.
Bijzonderheden koopovereenkomst:
- Er is pas sprake van een rechtsgeldige koopovereenkomst als de particuliere verkoper en de particuliere koper de koopovereenkomst hebben ondertekend (schriftelijkheidsvereiste). Een bevestiging van de mondelinge overeenstemming per e-mail of een toegestuurd concept van de koopovereenkomst wordt niet gezien als een "ondertekende overeenkomst";
- Er wordt ten behoeve en op verzoek van verkoper een bankgarantie/waarborgsom van 10% van de koopsom opgenomen;
- Er wordt een ouderdomsclausule en een asbestclausule in de te sluiten koopovereenkomst opgenomen.
- Er wordt een "niet zelfbewoningsclausule" in de koopovereenkomst opgenomen. Dit betekend dat de huidige verkoper er zelf niet of niet recent heeft gewoond.
Interesse in dit huis? Schakel direct uw eigen NVM-aankoopmakelaar in. Uw NVM aankoopmakelaar komt op voor uw belang en bespaart u tijd, geld en zorgen. Adressen van collega NVM aankoopmakelaars in Twente vindt u op Funda.nl
Aan deze objectinformatie kunnen geen rechten worden ontleend en deze informatie kan niet als aanbieding of offerte worden beschouwd. Indien u een aanbieding wenst, kan de makelaar deze, na goedkeuring door de opdrachtgever, op basis van specifieke gegevens verzorgen.
Kenmerken
Overdracht
- Vraagprijs
- € 335.000,- k.k.
- Aangeboden sinds
- 28 januari 2026
- Status
- beschikbaar
Bouw
- Type
- Woonhuis
- Soort woning
- eengezinswoning
- Type woning
- tussenwoning
- Bouwjaar
- 1980
- Ligging
- in woonwijk
Oppervlakten en inhoud
- Woonopp.
- 147 m²
- Perceelopp.
- 156 m²
- Inhoud
- 519 m³
Indeling
- Kamers
- 6
- Slaapkamers
- 5
Energie
- Energielabel
- C
Buitenruimte
- Tuin
- achtertuin, voortuin
- Hoofd tuin
- achtertuin
- Hoofd tuin opp.
- 55 m²
- Tuin ligging
- oost, zuid
Parkeergelegenheid
- Garage
- geen garage



