van Hoornlaan 130, 7207JL ZUTPHEN
Vraagprijs: € 450.000,- k.k.
Omschrijving
Aan een kindvriendelijk woonerf, in een rustige en groene omgeving, bevindt zich deze uitgebouwde, geschakelde helft van een dubbel woonhuis met garage, veranda en een fraai aangelegde, royale tuin op het westen. Een ideale woning voor wie houdt van ruimte, privacy en modern wooncomfort.
Indeling:
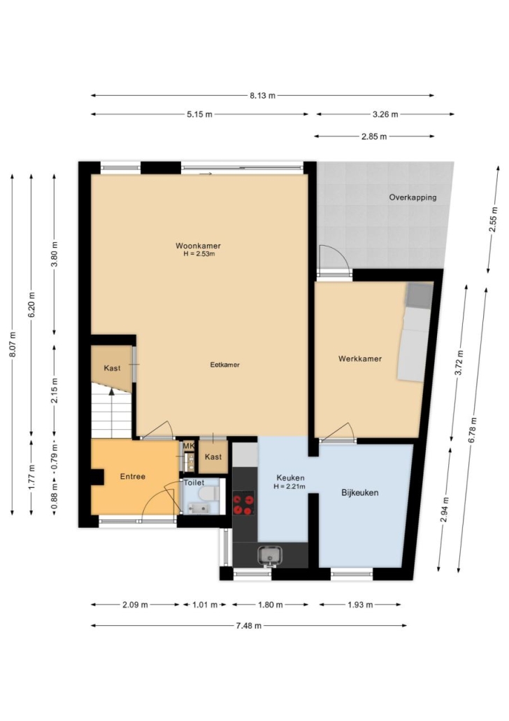
Begane grond:
Via de verzorgde entree bereikt u de hal met modern toilet voorzien van hangcloset en fonteintje. De tuingerichte woonkamer is heerlijk licht dankzij de grote schuifpui naar het zonneterras en is afgewerkt met een laminaatvloer. De praktische trapkast en vaste inbouwkast bieden extra bergruimte.
De halfopen keuken in hoekopstelling is voorzien van een laminaatvloer en complete inbouwapparatuur: inductiekookplaat, afzuigkap, oven, koelkast, magnetron en vaatwasser.
Aansluitend bevindt zich de bijkeuken met aansluiting voor wasmachine en droger. Vanuit hier is ook de werk-/tuinkamer bereikbaar _ een ideale ruimte voor een kantoor aan huis, hobbykamer of speelkamer, met directe toegang tot de tuin.
Eerste verdieping:
De overloop geeft toegang tot twee ruime slaapkamers, beide uitgerust met airconditioning. De ouderslaapkamer is met ca. 20 m² bijzonder royaal en voorzien van een eiken vloer. Desgewenst kan hier eenvoudig een extra slaapkamer worden gerealiseerd. De moderne badkamer beschikt over een wastafelmeubel, designradiator, douche, hangcloset en ligbad.
Tweede verdieping:
Via een vaste trap bereikt u de tweede verdieping met overloop, bergruimte en een derde ruime slaapkamer met laminaatvloer.
Algemeen
De fraai aangelegde tuin is een waar rustpunt, gelegen op het westen, met een sfeervolle veranda waar u tot in de late uurtjes kunt genieten van de zon en volledige privacy.
De garage is bereikbaar via de achterzijde en in de omgeving is voldoende parkeergelegenheid aanwezig.
De woning is goed geïsoleerd en voorzien van 8 zonnepanelen. Verwarming en warm water worden geleverd door een HR-combiketel (Intergas, 2020).
Kortom:
Een ruime, comfortabele woning met veel mogelijkheden, gelegen op een rustige en kindvriendelijke locatie _ ideaal voor wie ruimte, privacy en een fijne leefomgeving weet te waarderen!
Aan deze objectinformatie kunnen geen rechten worden ontleend en deze informatie kan niet als aanbieding of offerte worden beschouwd. Indien u een aanbieding wenst, kan de makelaar deze, na goedkeuring door de opdrachtgever, op basis van specifieke gegevens verzorgen.
Kenmerken
Overdracht
- Vraagprijs
- € 450.000,- k.k.
- Aangeboden sinds
- 14 november 2025
- Status
- beschikbaar
Bouw
- Type
- Woonhuis
- Soort woning
- eengezinswoning
- Type woning
- geschakelde 2-onder-1-kapwoning
- Bouwjaar
- 1996
- Ligging
- beschutte ligging, in woonwijk, vrij uitzicht
Oppervlakten en inhoud
- Woonopp.
- 115 m²
- Perceelopp.
- 269 m²
- Inhoud
- 399 m³
Indeling
- Kamers
- 5
- Slaapkamers
- 3
Energie
- Energielabel
- B
Buitenruimte
- Tuin oppervlakte
- 269
- Tuin
- achtertuin, voortuin
- Hoofd tuin
- achtertuin
- Hoofd tuin opp.
- 152 m²
- Tuin ligging
- west
Parkeergelegenheid
- Garage
- vrijstaand steen
- Garage capactiteit
- 1
