Oosteinde 263, 7671BA Vriezenveen
Vraagprijs: € 649.000,- k.k.
Omschrijving
Een volledig gemoderniseerde, verduurzaamde en karakteristieke vrijstaande woning met een riante aangebouwde schuur, gelegen aan het voor Vriezenveen zo karakteristieke Oosteinde.
Bent u op zoek naar ruimte, karakter én comfort? Dan is deze royale woning absoluut het bekijken waard. Met maar liefst 8 slaapkamers biedt deze woning volop mogelijkheden voor grotere gezinnen, samengestelde gezinnen of wie graag extra werk- of hobbyruimte wenst. In 2005 is de woning ingrijpend gemoderniseerd en bouwkundig verbeterd. Daarbij is de gehele woning geïsoleerd en voorzien van een compleet nieuw dak (met Unidek dakplaten). Ook op het gebied van duurzaamheid is deze woning helemaal van nu: in 2020 zijn er 24 zonnepanelen geplaatst. Kortom: een sfeervolle en karakteristieke woning met verrassend veel ruimte, moderne voorzieningen en een uitstekende basis voor jarenlang woonplezier.
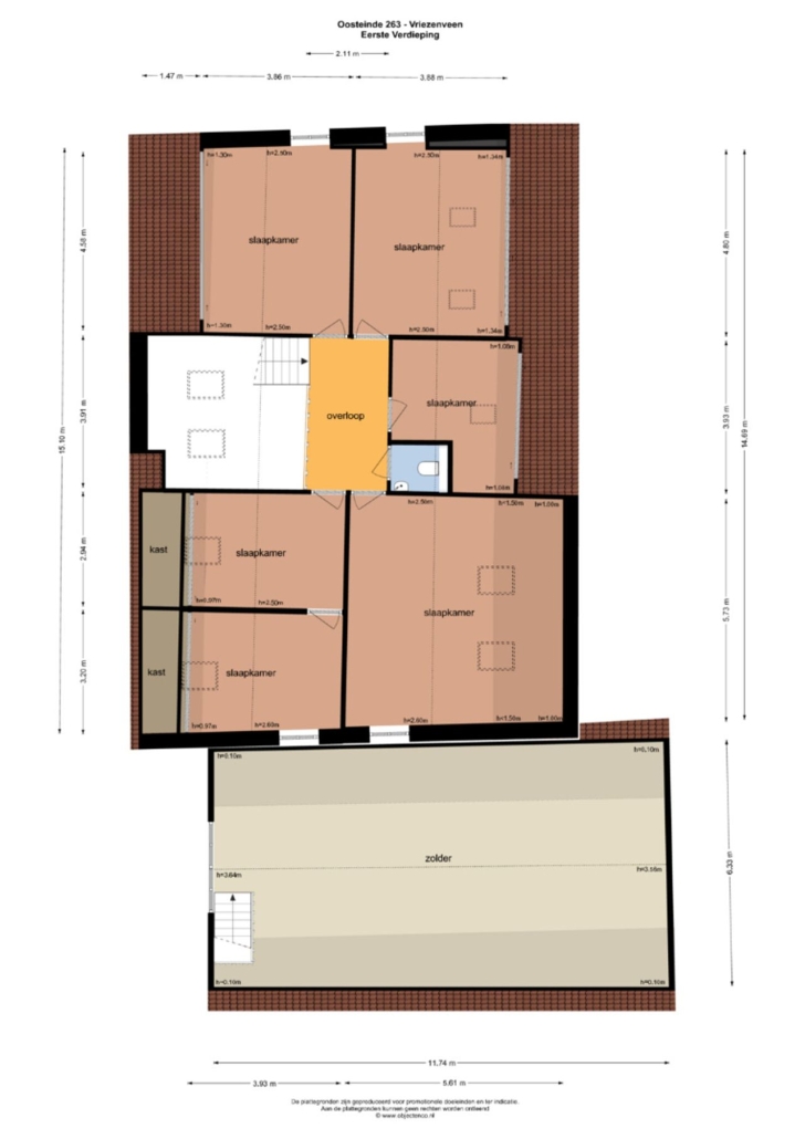
De woning kent de volgende Indeling:
Begane grond: riante en stijlvolle hal/entreé met grote vide, houtkachel en trapopgang naar de verdieping; moderne toiletruimte; royale rechthoekige en straatgerichte woonkamer met sfeervolle houtkachel; gesloten woonkeuken voorzien van een luxe en moderne inbouwkeuken (2020) en openslaande deuren naar het op het westen georiënteerde terras; werkkamer; 3 slaapkamers; ruime en moderne badkamer; hal met achteringang. Via buitenom te bereiken ruime garage/schuur.
Verdieping: ruime overloop/vide; 6 slaapkamers waarvan diverse zijn voorzien van ingebouwde kledingkasten of knieschotten met kastenwanden; moderne toiletruimte; berging voorzien van dakramen welke op de nominatie stond om te verbouwen tot 2e badkamer.
Algemeen:
-het woonhuis is oorspronkelijk gebouwd omstreeks 1900 en in 2005 grotendeels gemoderniseerd en volledig geïsoleerd
-de warmwater- en verwarmingsvoorziening geschiedt middels een gasgestookte cv installatie met een Remeha combi-ketel, geïnstalleerd in 2024
-de woning is voorzien van dak-, spouw-, vloer-, en glasisolatie en beschikt over energielabel B (de slaapkamers op de verdieping beschikken niet over verwarming. Zodra er op de slaapkamers een infrarood paneel wordt geïnstalleerd, wordt het energielabel verbeterd tot A)
-de keuken en badkamer zijn voorzien van vloerverwarming
-in 2020 is er een geheel nieuwe en moderne inbouwkeuken geplaatst
-in 2020 zijn er 24 zonnepanelen geplaatst
-in 2020 zijn de zonneschermen geplaatst
-in 2021 is het buitenschilderwerk en grotendeels het binnenschilderwerk uitgevoerd
-in 2021 is de badkamer opnieuw gemoderniseerd
-gelegen op enkele autominuten van de op-/afrit naar de N36, waardoor steden als Zwolle, Enschede en Hengelo binnen ca. 35 autominuten te bereiken zijn
-bij koop wordt een waarborgsom/bankgarantie van 10% van de koopsom van de koper verlangd
Woonkeuken: de gesloten woonkeuken is voorzien van een luxe en moderne inbouwkeuken (2020) met daarin een inductiekookplaat, afzuigkap, koelkast met vriezer, combi-magnetron, oven, quooker en vaatwasser.
Badkamer (begane grond): deze ruime en moderne badkamer is uitgevoerd met een inloopdouche, wastafelmeubel en vloerverwarming.
Resumerend: een sfeervolle en karakteristieke woning met verrassend veel ruimte, moderne voorzieningen en een uitstekende basis voor jarenlang woonplezier.
Geïnteresseerd: op donderdag 30 april 2026 van 9.00 tot 17.00 uur is er een kijkdag georganiseerd. U kunt alleen deelnemen op afspraak. Hiervoor kunt u tel. contact opnemen met ons kantoor op tel. nr 0546 641234.
Kenmerken
Overdracht
- Vraagprijs
- € 649.000,- k.k.
- Aangeboden sinds
- 17 april 2026
- Status
- beschikbaar
Bouw
- Type
- Woonhuis
- Soort woning
- eengezinswoning
- Type woning
- vrijstaande woning
- Bouwjaar
- 1900, 2005
Oppervlakten en inhoud
- Woonopp.
- 268 m²
- Perceelopp.
- 700 m²
- Inhoud
- 1.725 m³
Indeling
- Kamers
- 10
- Slaapkamers
- 8
Energie
- Energielabel
- B
Buitenruimte
- Tuin
- zijtuin
- Hoofd tuin
- zijtuin
- Hoofd tuin opp.
- 252 m²
- Tuin ligging
- oost, zuid
Parkeergelegenheid
- Garage
- aangebouwd steen
- Garage capactiteit
- 1
