Berfloweg 68, 7553JS HENGELO
Vraagprijs: € 385.000,- k.k.
Omschrijving
Karakteristieke 2-onder-1-kapwoning met maar liefst 5 slaapkamers, zonnige tuin op het zuidwesten én sauna!
Aan de Berfloweg 68 staat deze verrassend ruime 2-onder-1-kapwoning uit 1938. De woning combineert karakter met comfort en biedt volop leefruimte voor (grote) gezinnen, met als absolute pluspunten de vijf slaapkamers, de zonnige tuin op het zuidwesten en de aanwezigheid van een sauna.
De ligging is ideaal: binnen enkele minuten bereikt u het centrum en het station van Hengelo (ca. 400 m). Daarnaast bevinden voorzieningen zoals supermarkten, scholen en sportfaciliteiten zich in de directe omgeving en zijn uitvalswegen snel te bereiken.
Indeling:
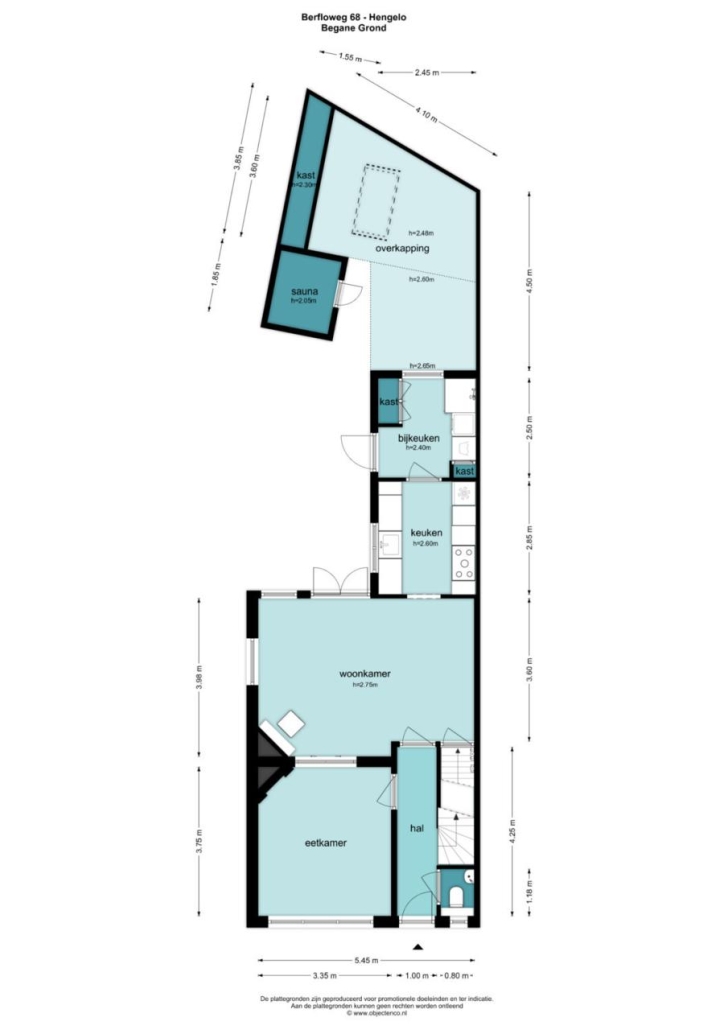
Begane grond: Entree/hal, toiletruimte, toegang tot de lichte woonkamer met openslaande deuren naar de achtertuin en de eetkamer aan de voorzijde van de woning. Vanuit de woonkamer is de halfopen keuken te bereiken, welke is voorzien van inbouwapparatuur. Aansluitend bevindt zich de bijkeuken met wasmachine- en drogeraansluiting en een douchecabine. Vanuit de bijkeuken is tevens de achtertuin met sauna bereikbaar.
Eerste verdieping: Overloop, drie slaapkamers en een badkamer voorzien van ligbad (bubbelbad), toilet en wastafelmeubel.
Tweede verdieping: Overloop, twee slaapkamers, beide voorzien van een dakkapel. De kamers zijn tevens geschikt als studeer-/werkkamer.
De achtertuin is gelegen op het zonnige zuidwesten en beschikt over een overkapping, sauna, achterom en een berging, waardoor het hier heerlijk ontspannen is.
Bijzonderheden:
- Bouwjaar: 1938;
- Woonoppervlakte: ca. 120 m²;
- Perceeloppervlakte: 147 m²;
- Energielabel: C;
- Cv-ketel (2014);
- Airco (2021);
- Pelletkachel (2023);
- Schilderwerk kozijnen (2024);
- Badkamer vernieuwd in 2015.
Bijzonderheden koopovereenkomst:
- Er is pas sprake van een rechtsgeldige koopovereenkomst als de particuliere verkoper en de particuliere koper de koopovereenkomst hebben ondertekend (schriftelijkheidsvereiste). Een bevestiging van de mondelinge overeenstemming per e-mail of een toegestuurd concept van de koopovereenkomst worden niet gezien als een "ondertekende overeenkomst";
- Er wordt ten behoeve en op verzoek van verkoper een bankgarantie/waarborgsom van 10% van de koopsom opgenomen;
- Er wordt een ouderdomsclausule in de te sluiten koopovereenkomst opgenomen;
- Er wordt een asbest-clausule in de te sluiten koopovereenkomst opgenomen.
Aan deze objectinformatie kunnen geen rechten worden ontleend en deze informatie kan niet als aanbieding of offerte worden beschouwd. Indien u een aanbieding wenst, kan de makelaar deze, na goedkeuring door de opdrachtgever, op basis van specifieke gegevens verzorgen.
Kenmerken
Overdracht
- Vraagprijs
- € 385.000,- k.k.
- Aangeboden sinds
- 10 april 2026
- Status
- beschikbaar
Bouw
- Type
- Woonhuis
- Soort woning
- eengezinswoning
- Type woning
- 2-onder-1-kapwoning
- Bouwjaar
- 1938
- Ligging
- in woonwijk
Oppervlakten en inhoud
- Woonopp.
- 120 m²
- Perceelopp.
- 147 m²
- Inhoud
- 437 m³
Indeling
- Kamers
- 7
- Slaapkamers
- 5
Energie
- Energielabel
- C
Buitenruimte
- Tuin oppervlakte
- 50
- Tuin
- achtertuin, voortuin, zijtuin
- Hoofd tuin
- achtertuin
- Hoofd tuin opp.
- 32 m²
- Tuin ligging
- zuid, west
Parkeergelegenheid
- Garage
- geen garage
