R.A. de Monchystraat 37, 7555NZ HENGELO
Huurprijs: € 1.895,- p.m.
Omschrijving
Duurzame hoekwoning op het Seahorse-terrein in Hengelo
Wonen in een karakteristieke, groene en hoogwaardige woonomgeving? Aan de R.A. de Monchystraat in Hengelo bieden wij deze moderne hoekwoning aan, gelegen op het bijzondere Seahorse-terrein: het voormalige terrein van de Koninklijke Weefgoederen Fabriek.
Hier woont u op een historische locatie, gecombineerd met het comfort en de duurzaamheid van nu. De woning beschikt over een woonoppervlakte van circa 113 m², drie slaapkamers en een ruime zolderverdieping.
De woning is gebouwd met oog op de toekomst en beschikt over een energielabel A (feitelijk hoger, afgegeven bij oplevering). Verwarming vindt plaats middels een individuele bodemwarmtepomp, wat zorgt voor een aangenaam binnenklimaat en lage energielasten.
Indeling
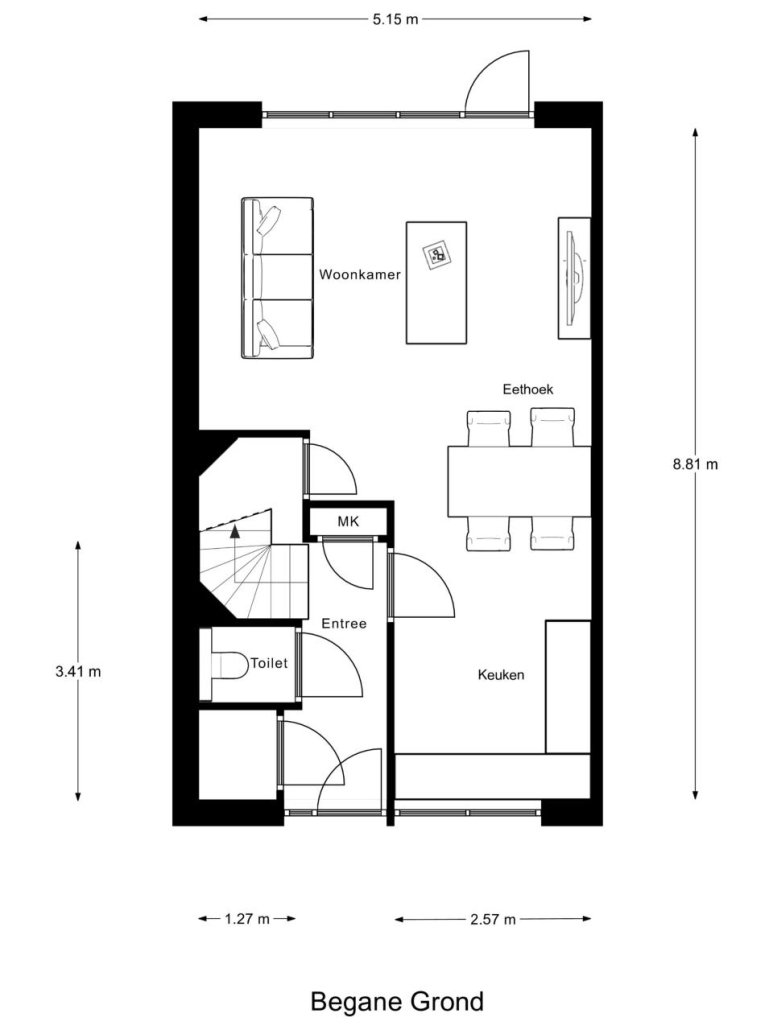
Begane grond:
Entree/hal met toilet, meterkast en toegang tot de woonkamer. De tuingerichte woonkamer is heerlijk licht en biedt directe toegang tot de tuin.
Aan de voorzijde bevindt zich de moderne keuken in hoekopstelling, voorzien van inbouwapparatuur.
Dankzij de ligging als hoekwoning beschikt de woning over een ruime tuin, met extra zijstrook en slechts aan één zijde directe buren. De achtertuin is tevens bereikbaar via het pad langs de woning.
Eerste verdieping:
Overloop met toegang tot drie slaapkamers en de badkamer. De slaapkamers zijn praktisch van formaat en geschikt als slaap-, werk- of hobbyruimte.
De badkamer is modern uitgevoerd.
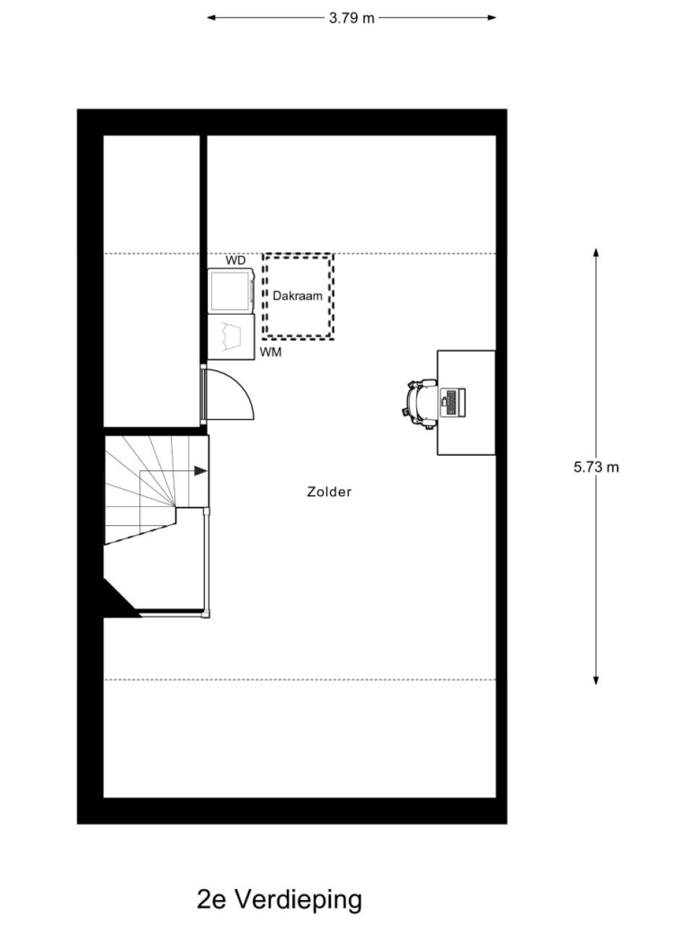
Zolderverdieping:
Ruime open zolderverdieping met opstelplaats voor wasmachine en droger. Deze verdieping biedt tevens extra bergruimte of mogelijkheden voor een werkplek.
Bijzonderheden
- Hoekwoning met extra ruimte en privacy;
- Woonoppervlakte ca. 113 m²;
- Gelegen op het duurzame Seahorse-terrein;
- Energielabel A;
- Verwarming middels individuele bodemwarmtepomp;
- Drie slaapkamers en ruime zolder;
- Inkomenseis: (gezamenlijk) bruto maandinkomen van minimaal € 6.500,--;
- Minimale huurperiode van 12 maanden;
- Minimale waarborgsom: € 1.895,--
- Huurprijs: € 1.895,-- per maand.
De getoonde foto's zijn afkomstig van een eerdere verhuurperiode en kunnen afwijken van de huidige situatie.
Om voor het appartement in aanmerking te komen, ontvangen wij graag de volgende documenten:
- Volledig ingevuld aanvraagformulier huurwoning;
- Kopie geldig legitimatiebewijs;
- Drie recente loonstroken (met bruto maandloon);
- Werkgeversverklaring (eventueel met intentieverklaring bij tijdelijk contract);
- Inkomensverklaring of jaaropgave 2024;
- Bij huurwoning: verklaring huidige eigenaar/beheerder;
- Bij koopwoning: verklaring hypotheekhouder;
- Uittreksel of screenshot BKR.
Aan deze objectinformatie kunnen geen rechten worden ontleend en deze informatie kan niet als aanbieding of offerte worden beschouwd. Indien u een aanbieding wenst, kan de makelaar deze, na goedkeuring door de opdrachtgever, op basis van specifieke gegevens verzorgen.
Kenmerken
Overdracht
- Huurprijs
- € 1.895,- p.m.
- Aangeboden sinds
- 03 april 2026
- Status
- beschikbaar
Bouw
- Type
- Woonhuis
- Soort woning
- eengezinswoning
- Type woning
- hoekwoning
- Bouwjaar
- 2021
- Ligging
- aan rustige weg, in woonwijk
Oppervlakten en inhoud
- Woonopp.
- 113 m²
- Perceelopp.
- 212 m²
- Inhoud
- 350 m³
Indeling
- Kamers
- 5
- Slaapkamers
- 4
Energie
- Energielabel
- A
Buitenruimte
- Tuin oppervlakte
- 112
- Tuin
- achtertuin
- Hoofd tuin
- achtertuin
- Hoofd tuin opp.
- 112 m²
- Tuin ligging
- noord
Parkeergelegenheid
- Garage
- geen garage



