Irisstraat 70, 7581TT LOSSER
Vraagprijs: € 575.000,- k.k.
Omschrijving
Wauw wat een parel deze uitgebouwde 2 onder 1 kapwoning.
Deze zeer goed afgewerkte twee onder een kapwoning is gelegen aan een rustige weg in het o zo gezellige Losser. Nabij alle denkbare voorzieningen.
Ben jij op zoek naar een royale woning en heb je geen zin of tijd om te klussen? Dan is dit de perfecte woning voor jou!
De gezellige, lichte woonkamer is voorzien van een prachtige PVC vloer met bies en vloerverwarming. Aan de achterzijde bieden de openslaande tuindeuren toegang tot de zonnige tuin met een gezellige overkapping, een waterkraan, een klein schuurtje voor tuingereedschap en een achterom. De zonwering aan de achterzijde van de woning is elektrisch bedienbaar. Er is een ruime inpandige garage met openslaande deuren naar de oprit en een achterdeur met toegang tot de achtertuin. Tussen de woonkamer en de woonkeuken is een prachtige afscheiding gemaakt doormiddel van luxe stalen deuren. De royale woonkeuken is voorzien van een vaatwasser, koelkast, wasbak en een Boretti fornuis met oven en een afzuigsysteem.
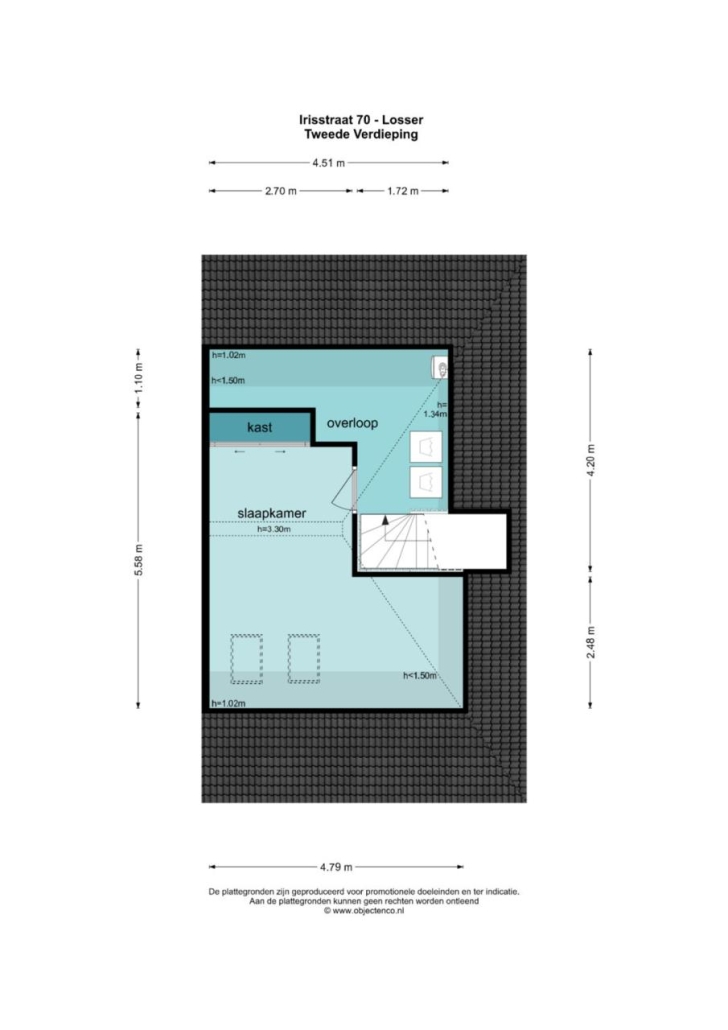
De woning is zeer energiezuinig en volledig gasloos. Op alle verdiepingen is een internetverbinding waardoor thuiswerken een goede optie kan zijn. Op de eerste verdieping bevinden zich 3 slaapkamers waarvan 2 met vaste kast. De vloerverwarming op de verdieping is per kamer in te stellen. De perfect afgewerkte badkamer heeft een royale inloopdouche, wastafelmeubel en een zwevend toilet. Vaste trap naar de tweede verdieping met wasmachine aansluiting, mechanische afzuiginstallatie en de verdeler van de zonnepanelen. Deze verdieping heeft tevens een ruime slaapkamer met 2 Velux dakramen.
Indeling:
Begane grond: entree, hal, toilet, trapkast, woonkamer, woonkeuken en een inpandige garage.
Eerste verdieping: overloop, 3 ruime slaapkamers, badkamer met inloopdouche, wastafelmeubel en zwevend toilet.
Tweede verdieping: via vaste trap te bereiken zolder met een 4e slaapkamer en aansluiting wasmachine, droger en de verdeler van de zonnepanelen.
Kenmerken:
- Bouwjaar 2020
- Woonoppervlakte 149 m²
- 20 zonnepanelen en warmtepomp
- Energielabel A+
- Grote oprit geschikt voor meerdere auto's
- Gehele woning voorzien van PVC vloer met vloerverwarming
- Bovenverdieping voorzien van airco
- Laadunit voor hybride auto
Bijzonderheden koopovereenkomst:
- Aanvaarding: in overleg.
- Er is pas sprake van een rechtsgeldige koopovereenkomst als de particuliere verkoper en de particuliere koper de koopovereenkomst hebben ondertekend (schriftelijkheidsvereiste). Een bevestiging van de mondelinge overeenstemming per e-mail of een toegestuurd concept van de koopovereenkomst wordt niet gezien als een "ondertekende overeenkomst".
- Op verzoek van de verkoper zal er in deze koopakte een bankgarantie van 10% van de koopsom worden opgenomen.
Interesse in dit huis? Schakel direct uw eigen NVM-aankoopmakelaar in. Uw NVM-aankoopmakelaar komt op voor uw belang en bespaart u tijd, geld en zorgen. Adressen van collega NVM-aankoopmakelaars in Twente vindt u op Funda.nl
Aan deze objectinformatie kunnen geen rechten worden ontleend en deze informatie kan niet als aanbieding of offerte worden beschouwd. Indien u een aanbieding wenst, kan de makelaar deze, na goedkeuring door de opdrachtgever, op basis van specifieke gegevens verzorgen.
Kenmerken
Overdracht
- Vraagprijs
- € 575.000,- k.k.
- Aangeboden sinds
- 07 oktober 2025
- Status
- Verkocht onder voorbehoud
Bouw
- Type
- Woonhuis
- Soort woning
- eengezinswoning
- Type woning
- 2-onder-1-kapwoning
- Bouwjaar
- 2020
- Ligging
- in woonwijk
Oppervlakten en inhoud
- Woonopp.
- 149 m²
- Perceelopp.
- 279 m²
- Inhoud
- 610 m³
Indeling
- Kamers
- 6
- Slaapkamers
- 4
Energie
- Energielabel
- A+
Buitenruimte
- Tuin
- achtertuin, voortuin, zijtuin
- Hoofd tuin
- achtertuin
- Hoofd tuin opp.
- 74 m²
- Tuin ligging
- zuid
Parkeergelegenheid
- Garage
- aangebouwd steen
- Garage capactiteit
- 1
