Zaagmolenweg 7, 7204HJ ZUTPHEN
Vraagprijs: € 295.000,- k.k.
Omschrijving
Sfeervolle, uitgebouwde tussenwoning (ca. 1910) met zonnig stadstuintje op het zuiden en achterom _ op loopafstand van de historische binnenstad!
Op een gunstige locatie nabij diverse voorzieningen én op steenworp afstand van de historische binnenstad staat deze charmante en goed onderhouden tussenwoning uit omstreeks 1910. De woning is met zorg bewoond, waarbij karakter en comfort op harmonieuze wijze zijn gecombineerd.
Indeling:
Begane grond:
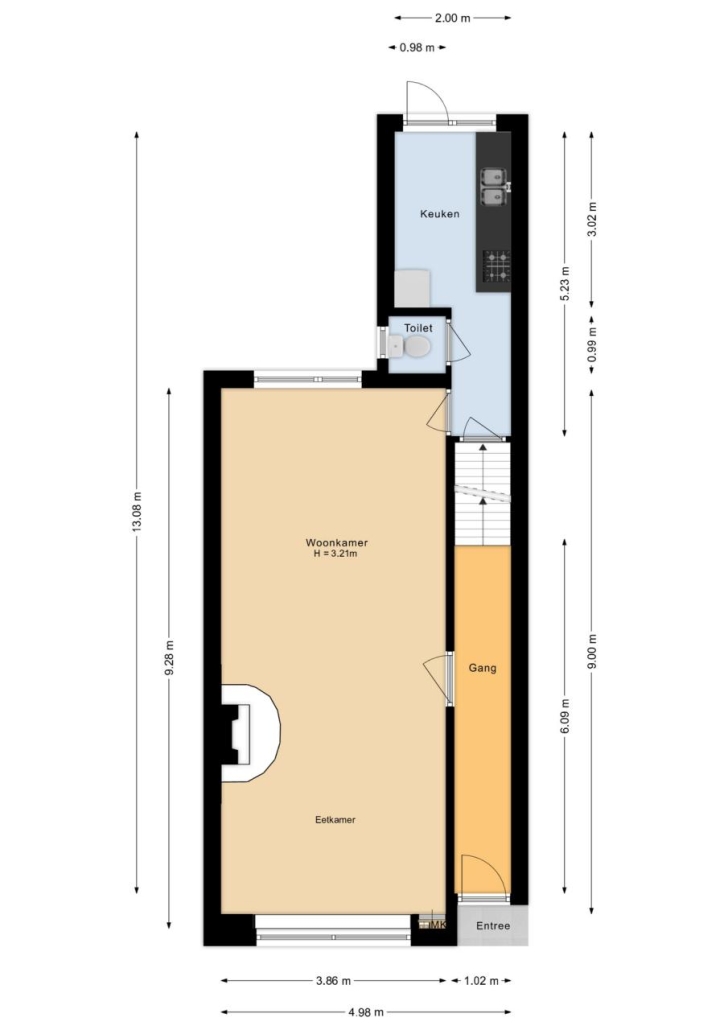
Via de entree betreedt u de gang met toegang tot de royale woonkamer. De zeer ruime en lichte woonkamer biedt volop leefruimte en een prettige lichtinval. De aanwezige houtkachel zorgt voor extra sfeer en warmte tijdens de koudere maanden. Vanuit de woonkamer bereikt u een inpandig halletje met toilet en toegang tot de praktische kelder _ ideaal voor extra provisieruimte. De dichte keuken is uitgevoerd in een praktische lengteopstelling en voorzien van elektrische vloerverwarming. De keuken beschikt over een vierpits gaskookplaat, afzuigkap, losse koel-vriescombinatie en een losse vaatwasser. De kunststof pui met deur biedt toegang tot het zonnige stadstuintje.
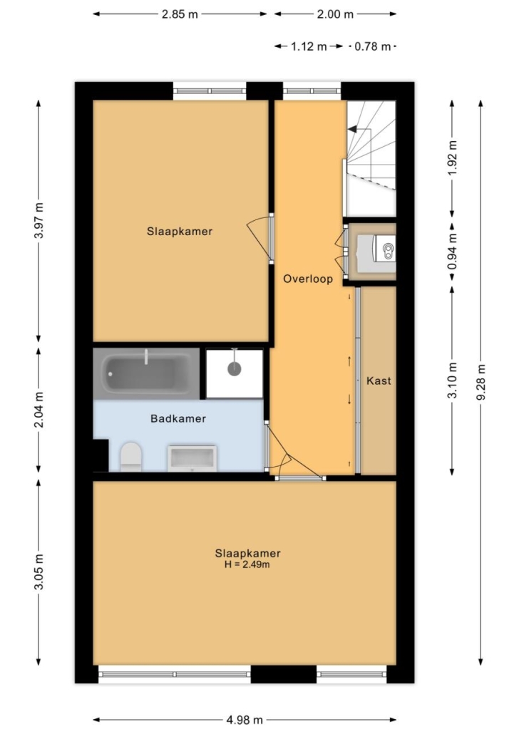
Eerste verdieping:
De overloop is voorzien van een vaste kastenwand met schuifdeuren en een praktische c.v.-/waskast. Op deze verdieping bevinden zich twee ruime slaapkamers. Eén slaapkamer is voorzien van een rolluik. De andere slaapkamer beschikt over een kunststof dakkapel over de volle breedte van de woning, wat zorgt voor extra ruimte en licht. Hier bestaat de mogelijkheid om een derde slaapkamer te realiseren. De badkamer is compleet uitgevoerd met een duo bad, inloopdouche, wastafelmeubel, badkamerkast en een tweede toilet.
Algemeen:
Het onderhoudsvriendelijke stadstuintje met achterom is gesitueerd op het zuiden, waardoor u hier optimaal van de zon kunt genieten.
De woning is gelegen op loopafstand van de historische binnenstad, waar u kunt genieten van gezellige winkels, horecagelegenheden en culturele voorzieningen. Ook scholen, supermarkten en openbaar vervoer bevinden zich in de nabije omgeving.
Aan deze objectinformatie kunnen geen rechten worden ontleend en deze informatie kan niet als aanbieding of offerte worden beschouwd. Indien u een aanbieding wenst, kan de makelaar deze, na goedkeuring door de opdrachtgever, op basis van specifieke gegevens verzorgen.
Kenmerken
Overdracht
- Vraagprijs
- € 295.000,- k.k.
- Aangeboden sinds
- 26 februari 2026
- Status
- beschikbaar
Bouw
- Type
- Woonhuis
- Soort woning
- eengezinswoning
- Type woning
- tussenwoning
- Bouwjaar
- 1910
- Ligging
- aan rustige weg, beschutte ligging, in woonwijk
Oppervlakten en inhoud
- Woonopp.
- 100 m²
- Perceelopp.
- 100 m²
- Inhoud
- 413 m³
Indeling
- Kamers
- 3
- Slaapkamers
- 2
Energie
- Energielabel
- F
Buitenruimte
- Tuin oppervlakte
- 100
- Tuin
- achtertuin
- Hoofd tuin
- achtertuin
- Hoofd tuin opp.
- 39 m²
- Tuin ligging
- zuid
Parkeergelegenheid
- Garage
- geen garage

