Hondelink 18, 7482KM HAAKSBERGEN
Vraagprijs: € 395.000,- k.k.
Omschrijving
Te moderniseren twee-onder-een-kapwoning met garage in gewilde woonwijk 't Wolferink.
Gelegen aan de rand van Haaksbergen, in de populaire woonwijk 't Wolferink, vindt u deze charmante twee-onder-een-kapwoning met ruime garage en oprit. De woning ligt aan een rustige straat nabij het buitengebied van Haaksbergen, terwijl de dorpskern slechts vijf minuten fietsen is.
De woning staat op een ruim perceel van 195 m² en heeft een woonoppervlakte van
111 m². Dankzij de centrale ligging zijn vele voorzieningen zoals winkels, medische faciliteiten, scholen en sportverenigingen eenvoudig bereikbaar.
De woning beschikt onder andere over een nette keuken, te moderniseren sanitair, drie goed bemeten slaapkamers en een ruime garage. Tevens biedt de zolder de mogelijkheid voor een vierde slaapkamer. Binnen is er volop potentie om de woning geheel naar eigen smaak te moderniseren.
Indeling:
Begane grond:
Entree/hal met toilet voorzien van wandcloset en fonteintje. Lichte woonkamer met nette laminaatvloer. Halfopen keuken met licht aanrechtblad, vierpits gaskookplaat, afzuigkap, combi-oven, koelkast en vaatwasser. Vanuit de keuken is de op het noordwesten gelegen achtertuin bereikbaar. De garage is zowel vanaf de oprit als vanuit de tuin toegankelijk.
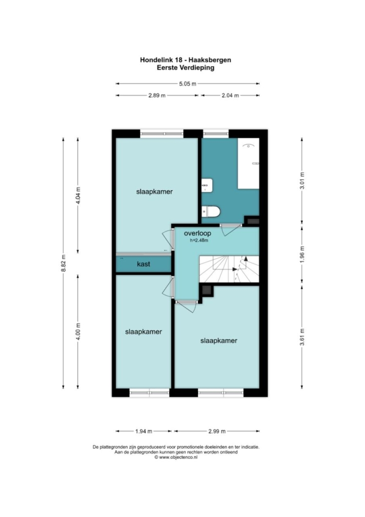
Eerste verdieping:
Overloop met drie slaapkamers, waarvan één bijzonder ruim. Te moderniseren badkamer met wastafel, toilet en bad met douche.
Tweede verdieping:
Via vaste trap bereikbare zolder met CV-ketel en aansluitingen voor wasmachine en droger. Hier is eenvoudig een vierde slaapkamer te realiseren.
Bijzonderheden:
-Bouwjaar: 1985;
-Woonoppervlakte: 111m²;
-Inhoud: 566 m³;
-Energielabel: C;
-Ideale locatie, dichtbij vele voorzieningen;
-Ruime en lichte woonkamer met een half open keuken;
-Te moderniseren sanitair;
-Drie goed bemeten slaapkamers, en potentie tot een vierde slaapkamer mogelijk;
-Ruime en zonnig ruin op het noordwesten;
-Parkeren op eigen terrein, eventueel binnen in de garage is ook mogelijk.
Aanvaarding: in overleg.
Kortom, Een ruime, goed gelegen twee-onder-een-kapwoning met garage en volop mogelijkheden om naar eigen wens te moderniseren. Rustige ligging nabij het buitengebied en op korte afstand van het bruisende centrum van Haaksbergen!
Nieuwsgierig geworden? Maak gerust een afspraak voor een bezichtiging. Je bent van harte welkom!
Bijzonderheden koopovereenkomst:
- Er is pas sprake van een rechtsgeldige koopovereenkomst als de particuliere verkoper en de particuliere koper de koopovereenkomst hebben ondertekend (schriftelijkheidsvereiste). Een bevestiging van de mondelinge overeenstemming per e-mail of een toegestuurd concept van de koopovereenkomst wordt niet gezien als een "ondertekende overeenkomst".
- Er zal ten behoeven en op verzoek van verkoper een ouderdoms,- en asbestclausule in de te sluiten koopovereenkomst opgenomen.
- Er zal ten behoeve en op verzoek van verkoper een bankgarantie/waarborgsom van 10% van de koopsom worden opgenomen.
Interesse in dit huis? Schakel direct uw eigen NVM-aankoopmakelaar in. Uw NVM-aankoopmakelaar komt op voor uw belang en bespaart u tijd, geld en zorgen. Adressen van collega NVM-aankoopmakelaars in Twente vindt u op Funda.nl
Aan deze objectinformatie kunnen geen rechten worden ontleend en deze informatie kan niet als aanbieding of offerte worden beschouwd. Indien u een aanbieding wenst, kan de makelaar deze, na goedkeuring door de opdrachtgever, op basis van specifieke gegevens verzorgen.
Kenmerken
Overdracht
- Vraagprijs
- € 395.000,- k.k.
- Aangeboden sinds
- 19 november 2025
- Status
- beschikbaar
Bouw
- Type
- Woonhuis
- Soort woning
- eengezinswoning
- Type woning
- geschakelde 2-onder-1-kapwoning
- Bouwjaar
- 1985
- Ligging
- aan rustige weg, in woonwijk
Oppervlakten en inhoud
- Woonopp.
- 111 m²
- Perceelopp.
- 214 m²
- Inhoud
- 466 m³
Indeling
- Kamers
- 4
- Slaapkamers
- 3
Energie
- Energielabel
- C
Buitenruimte
- Tuin oppervlakte
- 150
- Tuin
- achtertuin, voortuin
- Hoofd tuin
- achtertuin
- Hoofd tuin opp.
- 98 m²
- Tuin ligging
- noord, west
Parkeergelegenheid
- Garage
- aangebouwd steen
- Garage capactiteit
- 1
