Havenstraat 90, 7005AG DOETINCHEM
Huurprijs: op aanvraag
Omschrijving
Te huur: representatief bedrijfspand met kantoor in twee bouwlagen en verhard buitenterrein en mogelijk voor uitbreiding van de bedrijfsruimte, prima gelegen op het bedrijventerrein "Verheulsweide", goed bereikbaar vanaf de A18 welke aansluit op de A3/A12 Arnhem-Oberhausen en de N18 richting Twente. Het bedrijfspand wordt binnenkort gerenoveerd en verduurzaamd.
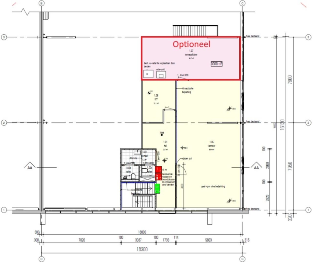
Indeling:
Kantoor begane grond: ca. 115 m²
Kantoor verdieping: ca. 115 m²
Bedrijfsruimte: ca. 750 m²
Bedrijfsruimte (optionele uitbreiding): ca. 365 m²
Buitenterrein: 1.000 m²
Vrije hoogte: ca. 6 meter
Voorzieningen:
- Verwarming d.m.v. vloerverwarming en warmtepomp
- Toiletgroep en pantry
- Overheaddeuren
- Turn-key oplevering kantoren
- Bedrijfsvloer is vloeistofdicht (nieuw)
- Was- en kleedruimte (optioneel)
Bereikbaarheid:
De ligging direct aan de regionale verbindingswegen N317/N315, alsmede de nabijheid van de op- en afritten van de rijksweg A18 die ook aansluit op de A3/A12 Arnhem- Oberhausen en de N18 richting Twente maakt deze locatie uitstekend bereikbaar.
Parkeren:
Er zijn voldoende parkeermogelijkheden op eigen terrein aanwezig.
Aan deze objectinformatie kunnen geen rechten worden ontleend en deze informatie kan niet als aanbieding of offerte worden beschouwd. Indien u een aanbieding wenst, kan de makelaar deze, na goedkeuring door de opdrachtgever, op basis van specifieke gegevens verzorgen.
Kenmerken
Overdracht
- Huurprijs
- op aanvraag
- Aangeboden sinds
- 04 december 2025
- Status
- beschikbaar
Bouw
- Type
- Bedrijfsruimte
- Bouwjaar
- 1989



