Voortsweg 131, 7523CD ENSCHEDE
Huurprijs: € 2.950,- p.m.
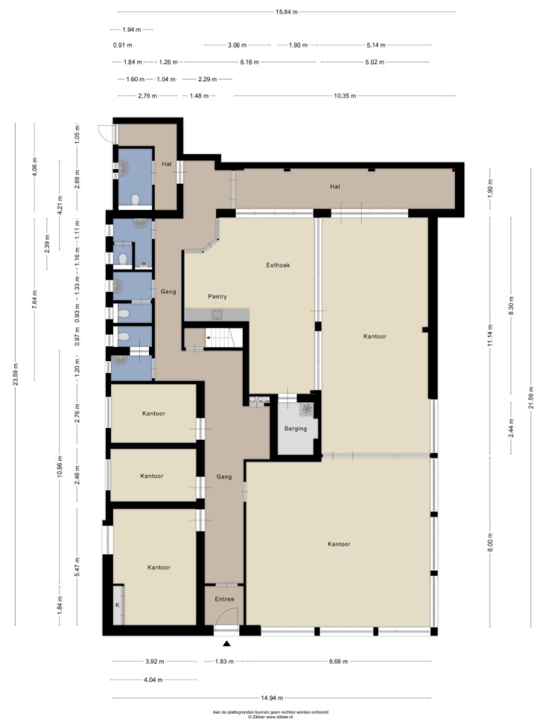
Omschrijving
Monumentaal kantoorgebouw met bedrijfsruimte.
Algemeen:
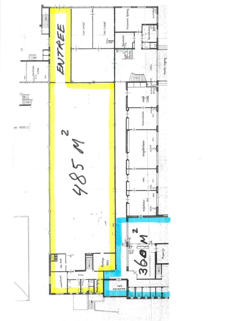
In de wijk Roombeek op de hoek Voortsweg en Hulsmaatstraat gelegen kantoorruimte met een oppervlakte van ca. 360 m² met 6 parkeerplaatsen, eventueel met aansluitende bedrijfsruimte met een oppervlakte van ca. 485 m². Beide ruimtes zijn ook apart te huur.
Indeling:
Kantoorruimte: entree, hal, kantoren, kantine, archief, toiletgroep met invalidentoilet.
Bedrijfsruimte: entree middels overheaddeur, bedrijfsruimte, kantoor en toiletgroep.
Bereikbaarheid:
Goede bereikbaarheid door hoeklocatie en meerdere inritten naar het parkeerterrein.
Bestemming:
Het object maakt deel uit van bestemmingsplan "Enschede Noord 2013" en heeft de bestemming "Kantoor" met functieaanduiding "maatschappelijk" en "bedrijf".
Voorzieningen:
- representatieve entree;
- verwarming;
- verlichtring;
- airco;
- scheidingswanden;
- tapijt;
- systeemplafonds;
- etc.
Huurprijs:
Kantoorruimte: € 2.950,-- per maand.
Bedrijfsruimte: € 2.020,-- per maand.
Aanvaarding:
In overleg.
Aan deze objectinformatie kunnen geen rechten worden ontleend en deze informatie kan niet als aanbieding of offerte worden beschouwd. Indien u een aanbieding wenst, kan de makelaar deze, na goedkeuring door de opdrachtgever, op basis van specifieke gegevens verzorgen.
Kenmerken
Overdracht
- Huurprijs
- € 2.950,- p.m.
- Aangeboden sinds
- 17 november 2025
- Status
- beschikbaar
Bouw
- Type
- Kantoorruimte
- Bouwjaar
- 1954



