Transportweg 15, 7007CL DOETINCHEM
Huurprijs: op aanvraag
Omschrijving
Te huur: Mooie moderne bedrijfsruimte, welke bestaat uit een combinatie van bedrijfsruimte met benodigde kantoorruimte en deels verhard buitenterrein, uitstekend gelegen op het bedrijventerrein "Wijnbergen" op korte afstand van de op- en afritten van de A-18 welke aansluit op de A3-A12.
Dankzij de nette afwerking en mooie uitstraling is dit pand een zeer representatieve locatie om klanten en relaties te ontvangen. De bedrijfsruimte is ruim opgezet en voorzien van twee grote elektrische overheaddeuren, waardoor laden en lossen eenvoudig is.
Op de verdieping zijn ramen aanwezig, waardoor deze ruimte zeer geschikt is voor het inrichten van kantoorruimte, showroom of aanvullende opslag.
Kortom: dit mooie pand is uitstekend geschikt voor uiteenlopende bedrijfsactiviteiten zoals opslag, lichte productie, logistiek en kantoorfuncties.
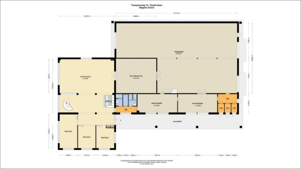
Indeling:
Kantoor begane grond ca. 240 m²
Toiletgroep ca. 18 m²
Werkplaats ca. 70m²
Magazijnkluis 3x ca. 17 m²
Kantoor verdieping ca. 40 m²
Technische ruimte verdieping ca. 20 m²
Bedrijfsruimte ca. 430 m²
Entresol ca. 90 m²
Totale v.v.o.: ca. 925 m²
Vrije hoogte bedrijfshal: ca. 5,50 meter
Totale perceelgrootte: ca. 2808 m²
Op het eigen terrein zijn voldoende parkeerplaatsen beschikbaar.
Voorzieningen:
Het object zal worden opgeleverd inclusief:
- verwarming door middel van radiatoren en gasgestookte CV-installatie;
- verwarming bedrijfsruimte middels heaters;
- noodverlichtingsinstallatie;
- brandslanghaspels;
- krachtstroom;
- airco units;
- elektrisch bediende overheaddeuren;
- alarminstallatie.
Huurprijs:
Huurprijs op aanvraag.
Aanvaarding:
Per direct.
Aan deze objectinformatie kunnen geen rechten worden ontleend en deze informatie kan niet als aanbieding of offerte worden beschouwd. Indien u een aanbieding wenst, kan de makelaar deze, na goedkeuring door de opdrachtgever, op basis van specifieke
Kenmerken
Overdracht
- Huurprijs
- op aanvraag
- Aangeboden sinds
- 02 februari 2026
- Status
- beschikbaar
Bouw
- Type
- Bedrijfsruimte
- Bouwjaar
- 1999



