Tijm 0ong, 7676DB WESTERHAAR-VRIEZENVEENSE
Koopsom: € 241.000,- v.o.n.
Omschrijving
KAVEL 1
Aan een plantsoen in nieuwbouwwijk de “Kruidenwijk” in Westerhaar-Vriezenveensewijk wordt aan de Tijm door Hendriksen Bouwservice een luxe 7 onder 1 kap woning gerealiseerd. Het zijn stuk voor stuk ruime woningen die volledig gasloos en onderhoudsarm worden gebouwd (o.a. kunststof kozijnen).
De woningen worden standaard opgeleverd met een moderne inbouwkeuken, pvc vloeren (begane grond en beide verdiepingen) en Villeroy & Boch sanitair in zowel de toiletruimte als badkamer. De woningen zijn gelegen op royale percelen van ca.158 tot ca. 273 m2.
De verkoopprijzen zijn vrij op naam en inclusief:
-21% BTW
-Architectkosten, constructiekosten
-Aanvraag bouwvergunning, welstandsadvies, elektra en water
-Aansluitkosten water, elektra en riolering
-Inrichting badkamer en toilet (zie technische omschrijving)
-Complete inbouwkeuken (zie technische omschrijving)
-Pvc vloeren op begane grond, 1e en 2e verdieping (zie technische omschrijving)
-Kunststof kozijnen
-Kosten Woningborg-garantiecertificaat (Garantie en Waarborg regeling)
-Makelaarscourtage en notariskosten
De verkoopprijzen zijn exclusief:
-Opties (meerwerk)
-Buitenbestrating/beplanting
Kenmerken
Overdracht
- Koopsom
- € 241.000,- v.o.n.
- Aangeboden sinds
- 17 januari 2022
- Status
- Verkocht onder voorbehoud
Bouw
- Type
- Woonhuis
- Soort woning
- eengezinswoning
- Type woning
- hoekwoning
- Bouwjaar
- 2021
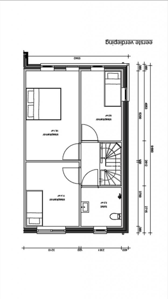
Oppervlakten en inhoud
- Woonopp.
- 124 m²
- Perceelopp.
- 273 m²
- Inhoud
- 462 m³
Indeling
- Kamers
- 5
- Slaapkamers
- 3
Buitenruimte
- Tuin oppervlakte
- 120
- Tuin
- achtertuin
- Hoofd tuin
- achtertuin
- Hoofd tuin opp.
- 120 m²
Parkeergelegenheid
- Garage
- geen garage
