Planthofsweg 3a, 7601PH ALMELO
Vraagprijs: € 489.500,- k.k.
Omschrijving
Unieke kans: Duurzaam en levensloopbestendig wonen op een toplocatie!
Comfortabel, energiezuinig en zorgeloos wonen op een prachtige locatie. Deze vrijstaande woning biedt met 130m² woonoppervlakte de perfecte combinatie van rust, moderne techniek en flexibiliteit. Ideaal voor senioren die op zoek zijn naar een ruim levensloopbestendig huis, maar door de extra slaapkamers boven ook uitermate geschikt voor gezinnen.
Bent u op zoek naar een woning waar u niet hoeft te klussen en die technisch klaar is voor de toekomst?
Deze strak onderhouden woning aan de Planthofsweg 3A biedt u die zekerheid. Met een Energielabel A en de unieke aanwezigheid van vacuümglas in de woning woont u hier uiterst comfortabel met minimale energielasten. Dankzij de volledige slaap- en badkamer op de begane grond is de woning drempelloos te bewonen. De diepe achtertuin pal op het zuiden en de rustige ligging maken het plaatje compleet.
Waarom deze woning uitermate geschikt is voor u:
-Levensloopbestendig: Volledig programma op de begane grond; wonen, slapen en baden op één niveau.
-Innovatieve Isolatie: De woning is gedeeltelijk voorzien van vacuümglas, wat de isolatiewaarde van triple glas biedt met de slanke uitstraling van enkel glas.
-Duurzaam & Energiezuinig: Voorzien van Energielabel A, wat zorgt voor een optimaal binnenklimaat en zeer lage maandlasten.
-Ruimte & Licht: Een royale woonkamer met een indrukwekkende raampartijen die zorgen voor een unieke lichtinval en direct contact met de tuin.
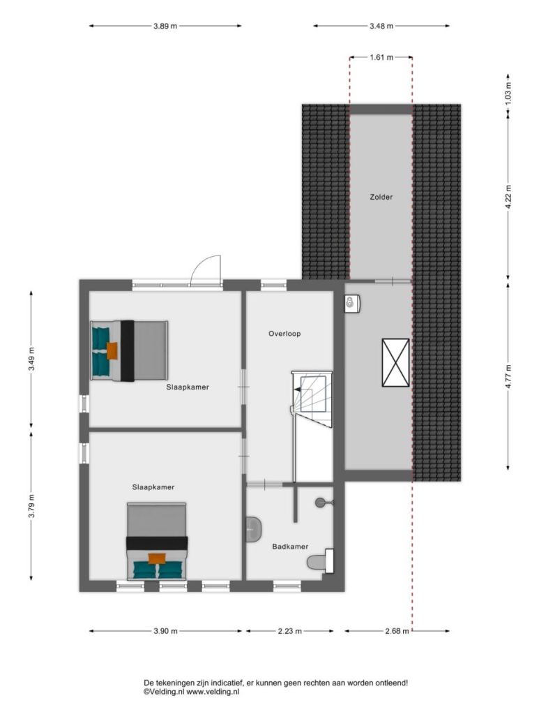
-Groeipotentie: De ruime zolderverdieping biedt de mogelijkheid voor een vaste trap, waarmee u eenvoudig extra woonmeters en waarde toevoegt.
Wonen aan de Planthofsweg: Rust, Groen en Gemak
De Planthofsweg staat bekend als een van de mooiere, rustige straten van Almelo. Gelegen in een kindvriendelijke omgeving met enkel bestemmingsverkeer, geniet u hier van optimale privacy. Op korte afstand vindt u het groen van het buitengebied voor een ontspannen wandeling, terwijl alle dagelijkse voorzieningen zoals supermarkten en zorgfaciliteiten snel bereikbaar zijn. De wijk kenmerkt zich door een prettige balans tussen rust en de nabijheid van het Almelose stadscentrum.
Indeling
Entree & Hal: U komt binnen in een lichte en ruime ontvangsthal met een chique hardhouten open trap. Hier vindt u tevens het moderne toilet en de toegang tot de diverse vertrekken. Direct grenzend aan de hal vindt u de praktische bijkeuken/berging met witgoedaansluitingen en een eigen buitendeur.
Wonen & Koken: De royale Z-vormige woonkamer is een absolute eyecatcher. Dankzij de kamerbrede raampartijen aan de achterzijde baadt de ruimte in het licht. De halfopen keuken is functioneel opgesteld in een hoek en biedt een fijn uitzicht op de tuin.
Slapen & Baden: Op de begane grond bevindt zich de royale hoofdslaapkamer die direct grenst aan de nette badkamer, voorzien van een douche en wastafel. Op de eerste verdieping vindt u nog eens twee volwaardige slaapkamers, ideaal als logeerkamer, hobbyruimte of voor inwonende kinderen.
Buitenruimte & Berging: De achtertuin is een paradijs voor zonliefhebbers door de ligging pal op het zuiden. Voor extra opslag heeft u de beschikking over een vrijstaande houten berging en een inpandige bergruimte. En natuurlijk een achterom.
Bijzonderheden:
-Vraagprijs: € 489.500,- k.k.
-Bouwjaar: 2004.
-Perceeloppervlakte: 333m²
-Woonoppervlakte: 130m² (plus 35m² overige inpandige ruimte).
-Energielabel: A.
-Isolatie: Volledig voorzien van vacuümglas of dubbel glas met zonwering in de beglazing.
-Levensloopbestendig: Slaap- en badkamer op de begane grond.
-Tuin: Pal op het zuiden met veel zon en privacy.
-Aanvaarding: Per direct mogelijk.
Aanvullende voorwaarden:
-Partijen zijn pas gebonden wanneer een koopovereenkomst is ondertekend door beide partijen (schriftelijkheidsvereiste).
-In de koopovereenkomst zal een niet-zelfbewoningsclausule worden opgenomen.
-Het stellen van een bankgarantie/waarborgsom ter grootte van 10% van de koopsom.
Bent u op zoek naar een woning waar rust, licht en duurzaamheid samenkomen? Plan vandaag nog uw bezichtiging aan de Planthofsweg 3A en ervaar het zelf!
Kenmerken
Overdracht
- Vraagprijs
- € 489.500,- k.k.
- Aangeboden sinds
- 30 april 2026
- Status
- beschikbaar
Bouw
- Type
- Woonhuis
- Soort woning
- eengezinswoning
- Type woning
- vrijstaande woning
- Bouwjaar
- 2004
- Ligging
- aan rustige weg, in woonwijk
Oppervlakten en inhoud
- Woonopp.
- 130 m²
- Perceelopp.
- 333 m²
- Inhoud
- 610 m³
Indeling
- Kamers
- 5
- Slaapkamers
- 3
Energie
- Energielabel
- A
Buitenruimte
- Tuin oppervlakte
- 130
- Tuin
- achtertuin, voortuin
- Hoofd tuin
- achtertuin
- Hoofd tuin opp.
- 88 m²
- Tuin ligging
- oost, zuid
Parkeergelegenheid
- Garage
- geen garage
