Oude Kanonsdijk 21, 7205AR ZUTPHEN
Vraagprijs: € 675.000,- k.k.
Omschrijving
Unieke wederopbouwboerderij met appartement, studio, atelierruimte en natuurtuin _ wonen, werken én genieten in De Hoven!
Zoekt u een karaktervolle boerderij met volop ruimte, sfeer en mogelijkheden? Deze in 1954 gebouwde wederopbouwboerderij in de geliefde wijk De Hoven (Zutphen) combineert het beste van twee werelden: landelijk wonen met een stadse twist. Hier geniet u van rust, privacy en natuur, terwijl de historische binnenstad van Zutphen binnen een paar minuten bereikbaar is.
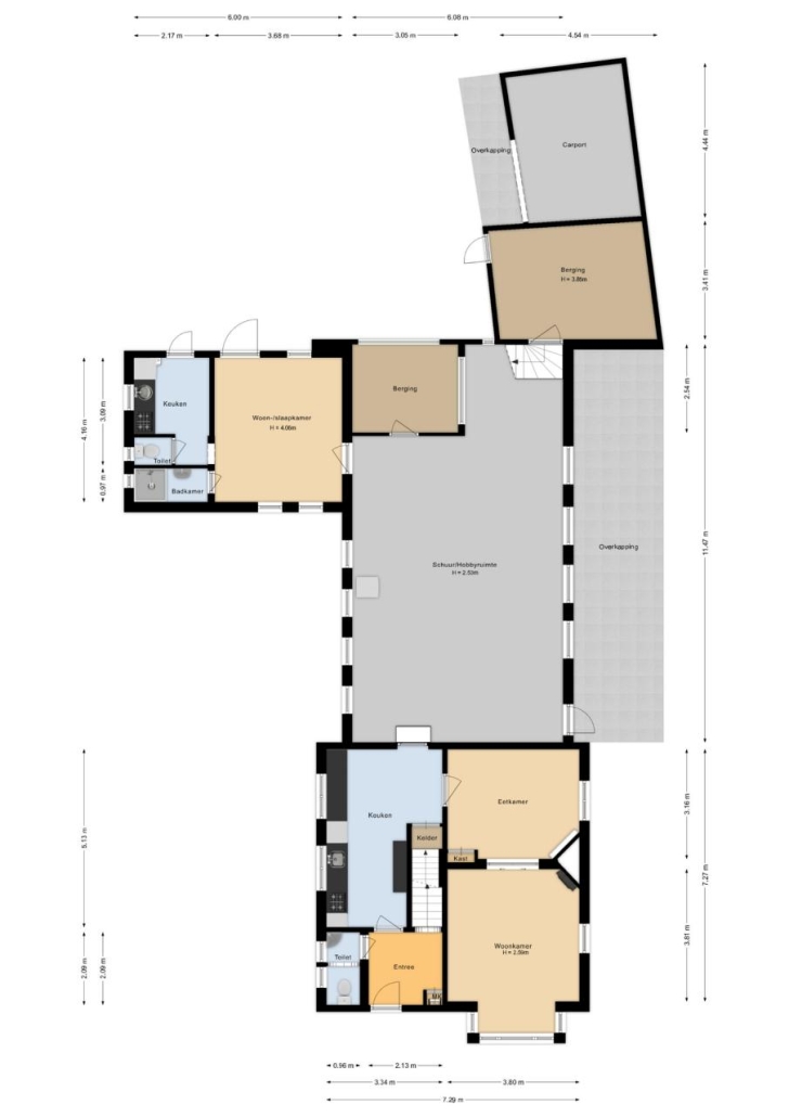
Indeling voorhuis:
Begane grond:
Binnenkomen doet u in de hal met originele tegelvloer. De dichte keuken is gezellig en praktisch ingedeeld met houten werkblad, inbouwapparatuur en een provisiekelder. De kamer en suite heeft een houtkachel en een sfeervolle erker: een heerlijke plek voor lange avonden.
Eerste verdieping:
Drie slaapkamers (waarvan één met balkon!) en een moderne badkamer met vloerverwarming, inloopdouche en wastafelmeubel.
Zolder:
Via een vlizotrap bereikt u een extra kamer en veel bergruimte.
Extra woonruimte en bijgebouwen, dit object blinkt uit in mogelijkheden!
In de voormalige hooizolder is een appartement gerealiseerd (met woonkamer, keuken, badkamer en 2 slaapkamers) dat momenteel verhuurd wordt _ ideaal als investering of voor dubbele bewoning.
De voormalige paardenstal is omgetoverd tot een knusse studio met woon-/slaapkamer, slaapzolder, keuken, douche en toilet.
De voormalige kapschuur dient nu als carport.
De voormalige wagenloods is verbouwd tot atelierruimte met zolder _ perfect voor werk aan huis of creatieve bezigheden.
Algemeen:
*De boerderij staat op een riant perceel van 2030 m². De natuurtuin is rijk aan struiken en bomen, waardoor u hier volop privacy ervaart. Of u nu houdt van tuinieren, buitenleven of simpelweg ontspannen in het groen _ hier kan het allemaal.
*In De Hoven woont u dorps en rustig, maar met alle voorzieningen binnen handbereik. Scholen, winkels en openbaar vervoer zijn dichtbij en met de fiets of auto bent u in een paar minuten in de bruisende binnenstad van Zutphen.
*Appartement én studio voor verhuur, mantelzorg of gasten
*Atelierruimte en hobbyruimtes voor werk of hobby
*Riant perceel met natuurtuin en veel privacy
*Combinatie van landelijk wonen en stadse voorzieningen
Kortom: een uniek object met eindeloze mogelijkheden. Dit moet u gezien hebben!
Aan deze objectinformatie kunnen geen rechten worden ontleend en deze informatie kan niet als aanbieding of offerte worden beschouwd. Indien u een aanbieding wenst, kan de makelaar deze, na goedkeuring door de opdrachtgever, op basis van specifieke gegevens verzorgen.
Kenmerken
Overdracht
- Vraagprijs
- € 675.000,- k.k.
- Aangeboden sinds
- 02 oktober 2025
- Status
- Verkocht
Bouw
- Type
- Woonhuis
- Soort woning
- woonboerderij
- Type woning
- vrijstaande woning
- Bouwjaar
- 1954
- Ligging
- beschutte ligging, in woonwijk, vrij uitzicht
Oppervlakten en inhoud
- Woonopp.
- 207 m²
- Perceelopp.
- 2.030 m²
- Inhoud
- 1.161 m³
Indeling
- Kamers
- 8
- Slaapkamers
- 6
Energie
- Energielabel
- E
Buitenruimte
- Tuin oppervlakte
- 2030
- Tuin
- tuin rondom
- Hoofd tuin
- achtertuin
- Hoofd tuin opp.
- 750 m²
- Tuin ligging
- noord, oost
Parkeergelegenheid
- Garage
- carport
