Hoofdstraat 61, 7681DK Vroomshoop
Vraagprijs: € 419.000,- k.k.
Omschrijving
Op een absolute toplocatie bevindt zich deze schitterende, modern afgewerkte maisonnette met bijkeuken en ruime garage. Het appartement heeft een woon-oppervlak van 130 m², is verdeeld over drie verdiepingen en beschikt over twee ruime slaapkamers. Dit unieke complex “Het Hofje” is gebouwd in 2012 en ligt prachtig bij de karakteristieke Puntbrug aan het kanaal Almelo–De Haandrik.
Vanaf het balkon geniet u dagelijks van een prachtig uitzicht over het water.
Alle belangrijke voorzieningen zoals o.a. NS station, winkels, bushalte en activiteitencentrum bevinden zich op loopafstand. Binnen ca. 35 autominuten zijn steden als Enschede, Hengelo, Almelo en Zwolle bereikbaar.
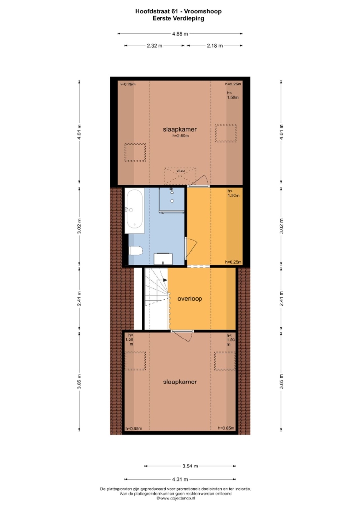
Deze moderne maisonnette kent de volgende indeling:
1e verdieping (“woonlaag”): entrée/hal voorzien van moderne toiletruimte, meterkast en trapopgang naar de 2e verdieping; ruime woonkamer voorzien van PVC-vloer en openslaande deuren naar het riante balkon; half-open keuken voorzien van een luxe en zeer complete inbouwkeuken; ruime inpandige bijkeuken/wasruimte.
2e verdieping (“slaaplaag”): ruime overloop; 2 lichte en ruime slaapkamers, waarvan 1 voorzien van vlizotrap naar ruime bergzolder; moderne en complete badkamer.
3e verdieping (bergruimte): via vlizotrap te bereiken bergzolder.
De half open keuken is voorzien van een luxe inbouwkeuken (2012) met daarin een gaskookplaat, afzuigkap, elektrische oven, koelkast, vaatwasser, en combi-magnetron.
De moderne en complete badkamer (2012) is voorzien van een inloopdouche met spatwand en glasdeur, kunststof ligbad, wastafelmeubel, hangtoilet, designradiator en vloerverwarming.
Algemeen:
-dit appartementencomplex is gebouwd in 2012
-de verwarmings- en warmwatervoorziening geschiedt middels een gasgestookte c.v.- installatie met een HR combi-ketel, geïnstalleerd in 2012
-het object is vanzelfsprekend volledig geïsoleerd en voorzien van Energielabel A
-servicekosten bedragen € 115,00 per maand (hiervan worden o.a. de opstal- verzekering, het buitenschilderwerk, onderhoud buitenzijde gebouw en onderhoud
gezamenlijke binnentuin betaald)
-dit appartement is perfect onderhouden en “instapklaar”, zonder dat er een modernisering of verbouwing nodig is
-alle belangrijke voorzieningen (o.a. NS station, winkels, activiteitencentrum etc.) zijn op loop- en fietsafstand gelegen
-bij koop wordt een waarborgsom/bankgarantie van 10% van de koopsom van de koper verlangd
Resumerend: een prachtig gelegen appartement in een bijzonder complex, op een zeer markante locatie aan het kanaal Almelo-de Haandrik.
Kenmerken
Overdracht
- Vraagprijs
- € 419.000,- k.k.
- Aangeboden sinds
- 22 januari 2026
- Status
- beschikbaar
Bouw
- Type
- Appartement
- Soort woning
- maisonnette
- Bouwjaar
- 2012
- Ligging
- aan water
Oppervlakten en inhoud
- Woonopp.
- 131 m²
- Inhoud
- 542 m³
Indeling
- Kamers
- 5
- Slaapkamers
- 2
Energie
- Energielabel
- A
Parkeergelegenheid
- Garage
- vrijstaand steen
- Garage capactiteit
- 1



