Wemenstraat 9, 7551ET HENGELO
Vraagprijs: € 500.000,- k.k.
Omschrijving
BELEGGING:
In hartje centrum van het City Fashion Center aan de Wemenstraat te Hengelo mogen wij deze representatieve winkel met bovenwoning van in totaal circa 260m² groot verkopen als belegging. De winkel is verhuurd aan McWok en het appartement komt vermoedelijk weer beschikbaar.
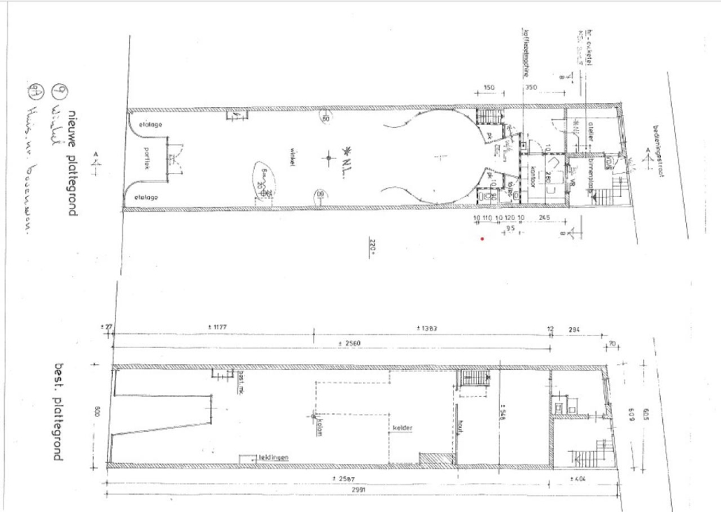
Indeling:
Winkel: ca. 140² groot,
Appartement (1e verdieping) circa 120m2 groot.
Kelderruimte aanwezig.
De winkel heeft een frontbreedte van ca. 5.5 meter.
Bereikbaarheid:
De winkel is gelegen nabij 1 van de drukste punten van de Hengelose binnenstad, namelijk Wemenstraat/Enschedesestraat. Parkeren is hier goed mogelijk (betaald) op openbaar terrein. Het NS/busstation is op circa 5 minuten loopafstand gelegen.
Voorzieningen:
De winkelruimte is in casco staat verhuurd en is destijds aangeboden met:
- heteluchtgordijn boven entree
- pui/entree
- meterkast
- systeemplafonds met verlichting
- pantry
- toiletunit met voorportaal
- Cv-installatie met winkelverwarming
Huidige situatie:
Contract van de winkel loopt tot 31 aug 2027 (5 + 5 jaar, 12 maanden opzegtermijn).
Contract van het appartement is afgesloten voor onbepaalde tijd met circa 1 maand opzegtermijn.
Huurinkomsten zullen wij delen op aanvraag.
Kadastrale gegevens:
Gemeente Hengelo, sectie O, nummer 1504.
Energielabel:
De onroerende zaak zal door verhuurder aan huurder worden opgeleverd onder afgifte van een geldig energielabel. Het afgegeven energielabel betreft een label G (geldig tot 08-10-2026).
Vraagprijs:
€ 500.000,-- k.k.
Aanvaarding:
In overleg.
Zekerheidsstelling:
Bankgarantie c.q. waarborgsom ter grootte van 10 % van de koopsom.
Aan deze informatie kunnen geen rechten worden ontleend en deze informatie kan niet als aanbieding
of offerte worden beschouwd. Indien u een aanbieding wenst, kan de makelaar deze, na goedkeuring
door de opdrachtgever, op basis van specifieke gegevens verzorgen.
Kenmerken
Overdracht
- Vraagprijs
- € 500.000,- k.k.
- Aangeboden sinds
- 26 maart 2026
- Status
- beschikbaar
Bouw
- Type
- Winkelruimte
- Bouwjaar
- 1906-1930
