Wegtersweg 38K, 7556BR HENGELO
Vraagprijs: € 225.000,- k.k.
Omschrijving
Moderne bedrijfsunit.
Algemeen:
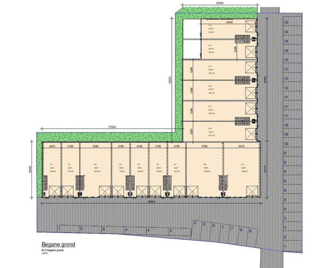
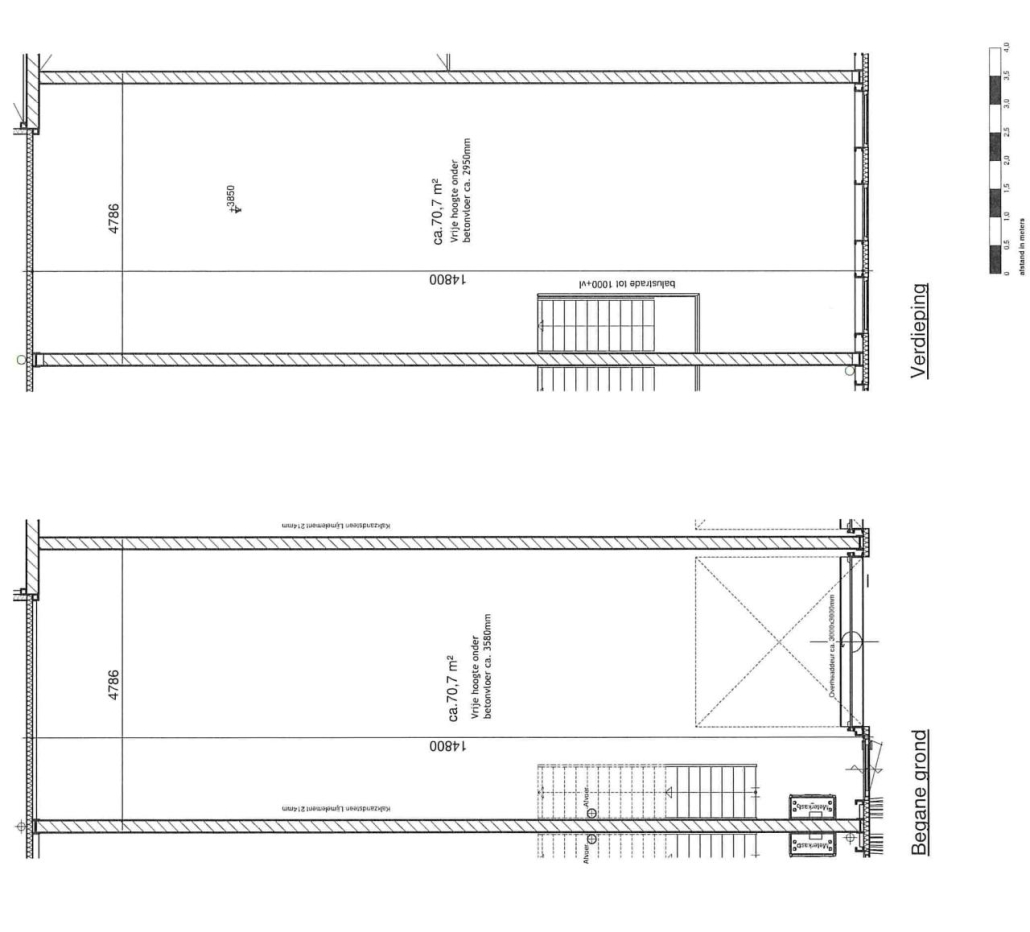
Op zichtlocatie aan de Wegtersweg gelegen bedrijfsunits met ca. 72 m² begane grond en ca. 72 m² verdieping.
Bereikbaarheid:
De unit is gelegen op "Bedrijventerrein Westermaat-Zuid" tegen de A1.
Voorzieningen:
- betonvloeren;
- vrije hoogte begane grond ca. 3.55 meter en verdieping ca. 3 meter;
- meterkast;
- 2 parkeerplaatsen.
Bestemmingsplan:
Het object maakt deel uit van bestemmingsplan "Bedrijventerrein Westermaat" en heeft de bestemming "Bedrijventerrein-Industrie".
Vraagprijs:
€ 225.000,-- te vermeerderen met BTW en notariskosten (geen overdrachtsbelasting).
Aanvaarding:
Per direct.
Aan deze objectinformatie kunnen geen rechten worden ontleend en deze informatie kan niet als aanbieding of offerte worden beschouwd. Indien u een aanbieding wenst, kan de makelaar deze, na goedkeuring door de opdrachtgever, op basis van specifieke gegevens verzorgen.
Kenmerken
Overdracht
- Vraagprijs
- € 225.000,- k.k.
- Aangeboden sinds
- 06 februari 2026
- Status
- beschikbaar
Bouw
- Type
- Bedrijfsruimte
- Bouwjaar
- 2024

