Sloetsweg 106, 7557HR HENGELO
Huurprijs: € 37.000,- p.j.
Omschrijving
Te huur: Representatieve winkel/-kantoorruimte met uitstekende zichtlocatie aan de Sloetsweg
Aan de doorgaande Sloetsweg, direct naast Nijhof Schoenen, bieden wij deze ruime en veelzijdige winkel/-kantoorruimte te huur aan. De locatie kenmerkt zich door een uitstekende zichtbaarheid, brede etalagemogelijkheden en goede bereikbaarheid. Parkeren kan bovendien eenvoudig en kosteloos direct voor de deur.
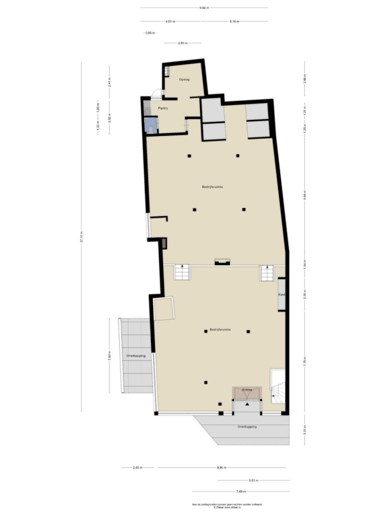
Objectomschrijving:
De winkelruimte beschikt over een royale gevelbreedte van maar liefst 9,50 meter, ideaal voor een opvallende etalagepresentatie. Het verkoopoppervlak bedraagt ca. 226 m² en is volledig gesitueerd op de begane grond. Het achterste gedeelte is iets verhoogd (vier treden), wat zorgt voor een speels en onderscheidend effect in de winkelruimte.
Daarnaast bevinden zich op de begane grond een kleine kantine met pantry en toilet, evenals een praktische opslagruimte van ca.17 m².
De winkel is volledig onderkelderd en onderverdeeld in twee delen:
-Het voorste deel (ca. 234 m²) ingericht als kantoor/kantine/verpakkingsruimte;
-Het achterste deel geschikt als royaal magazijn;
Het totale verhuurbare vloeroppervlak bedraagt ca. 476 m².
Bestemming:
Het object is gelegen binnen het bestemmingsplan "Vooroorlogse Wijken 2016 (deel 2)", vastgesteld op 12 februari 2019 en geraadpleegd op 25 september 2025. De bestemming is "Gemengd", hetgeen onder andere detailhandel en kantoorfuncties mogelijk maakt.
Huurprijs:
€ 37.000,- per jaar te vermeerderen met BTW.
Aanvaarding en contractduur:
Per direct, voor een periode van 5 + 5 jaren.
Aan deze objectinformatie kunnen geen rechten worden ontleend en deze informatie kan niet als aanbieding of offerte worden beschouwd. Indien u een aanbieding wenst, kan de makelaar deze, na goedkeuring door de opdrachtgever, op basis van specifieke gegevens verzorgen.
Kenmerken
Overdracht
- Huurprijs
- € 37.000,- p.j.
- Aangeboden sinds
- 30 september 2025
- Status
- beschikbaar
Bouw
- Type
- Winkelruimte
- Bouwjaar
- 1978



