Oudste Poortstraat 4, 7041AR 'S-HEERENBERG
Vraagprijs: € 450.000,- k.k.
Omschrijving
Uniek wonen en werken in historisch pand in 's-Heerenberg
Te koop: woning- en bedrijfsruimte aan huis/atelier van 165 m² met 2 slaapkamers, met de mogelijkheid om de bedrijfsruimte te transformeren naar wonen. Dit karakteristieke en historische pand in het centrum van 's-Heerenberg combineert wonen en werken op een harmonieuze manier. Het maakt deel uit van het historische straatbeeld en ademt sfeer en authenticiteit, met kenmerkende elementen zoals gevel, maatvoering en uitstraling. De begane grond is ideaal voor een atelier, praktijkruimte, studio of kantoor, terwijl de woonruimte comfortabel en functioneel is opgezet en voldoende ruimte biedt voor een gezin of thuiswerkende professional. Een extra pluspunt is de mogelijkheid voor een dakterras, waardoor het zicht volledig verandert van stedelijk naar groen en u vrij uitkijkt over het natuurgebied Montferland.
Het natuurgebied Montferland ligt op loopafstand en biedt rust, privacy en groen in directe nabijheid van het centrum. 's-Heerenberg zelf heeft een levendig centrum met winkels, horeca en culturele voorzieningen, en de ligging nabij de Duitse grens zorgt voor extra dynamiek. Hier komen historie, comfort, natuur en een centrale locatie op een unieke manier samen, waardoor wonen, werken en ontspannen perfect gecombineerd kunnen worden.
Indeling:
Begane grond:
Via de entree kom je binnen in het atelier, een ruimte met veel mogelijkheden. Het is ruim genoeg voor een bedrijf aan huis, maar kan ook eenvoudig worden omgevormd tot een woonkamer met keuken. Vanuit het atelier bereik je de ruime hal, voorzien van een klein keukenblok en een toilet met meterkast. Vanuit deze hal is er toegang tot de kelder en een extra deur naar een kleinere hal, die leidt naar de trap naar de eerste verdieping.
Eerste verdieping:
De overloop geeft toegang tot een separaat toilet, een kast met cv-installatie, de badkamer en de keuken.
De keuken is uitgevoerd in een eenvoudige rechte opstelling en voorzien van een oven, elektrische kookplaat, afzuigkap, spoelbak, koelkast. Via de ruime toog staat de keuken in open verbinding met de woonkamer, waardoor beide ruimtes mooi in elkaar overlopen. Door de vele raampartijen is de ruime woonkamer heerlijk licht. Vanuit de woonkamer is er toegang tot een Frans balkon. De badkamer is uitgerust met een dubbel wastafelmeubel, ligbad en een aparte douche.
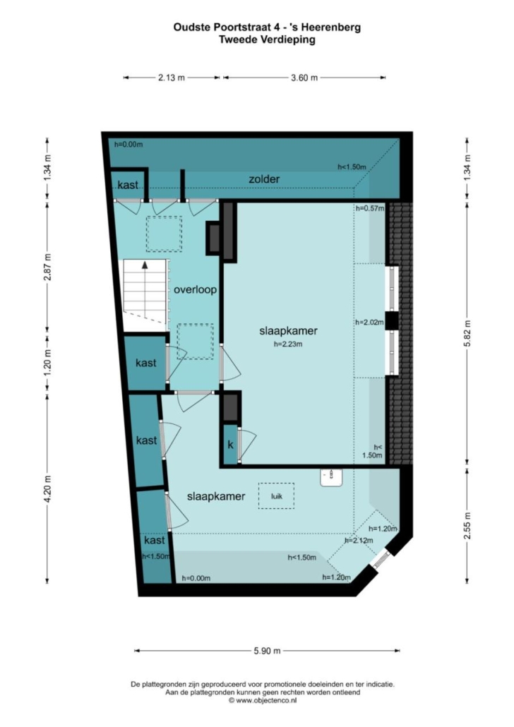
Tweede verdieping:
Via een vaste trap bereik je de overloop met veel kast- en opbergruimte. Op deze verdieping bevinden zich tevens twee slaapkamers, waarvan één is voorzien van een kleine inbouwkast en een dakkapel. De andere slaapkamer beschikt over een grote inbouwkast, een wastafel en een luik naar een te realiseren dakterras.
Kelder:
Ruime kelder met veel opbergruimte, ideaal voor het bewaren van spullen.
Bijzonderheden:
- Woonoppervlakte ca. 165 m²
- Bouwjaar 1910;
- Wonen en werken aan huis;
- Centrale ligging in het hart van 's-Heerenberg.
Let op!: Dit historische pand wordt u aangeboden op basis van een BIEDEN VANAF prijsstelling. Biedingen vanaf € 450.000,- k.k. worden door de verkoper serieus in overweging genomen.
Een unieke kans voor wie op zoek is naar een inspirerende woon- en werkomgeving op een locatie waar historie, natuur en stedelijk comfort samenkomen.
Is jouw interesse gewekt? Bel snel voor een bezichtiging met ten Hag Makelaarsgroep! We laten deze woning graag aan je zien!
Een brochure van deze woning is via Funda aan te vragen via de link - vraag brochure aan - in het rechtermenu, onze website of telefonisch op te vragen bij ons kantoor.
Er is pas sprake van een rechtsgeldige koopovereenkomst als de particuliere verkoper en de particuliere koper de koopovereenkomst hebben ondertekend (schriftelijkheidsvereiste). Een bevestiging van de mondelinge overeenstemming per e-mail of een toegestuurd concept van de koopovereenkomst worden niet gezien als een "ondertekende overeenkomst".
Er wordt ten behoeve en op verzoek van verkoper een bankgarantie/waarborgsom van 10% van de koopsom opgenomen.
Er wordt een ouderdomsclausule in de te sluiten koopovereenkomst opgenomen.
Aan deze objectinformatie kunnen geen rechten worden ontleend en deze informatie kan niet als aanbieding of offerte worden beschouwd. Indien u een aanbieding wenst, kan de makelaar deze, na goedkeuring door de opdrachtgever, op basis van specifieke gegevens verzorgen.
Kenmerken
Overdracht
- Vraagprijs
- € 450.000,- k.k.
- Aangeboden sinds
- 11 februari 2026
- Status
- beschikbaar
Bouw
- Type
- Bedrijfsruimte
- Bouwjaar
- 1910
