Misterstraat 48, 7101EX WINTERSWIJK
Vraagprijs: op aanvraag
Omschrijving
Beleggingspand in het centrum van Winterswijk
Winkelruimte met magazijn, twee appartementen en bedrijfsruimte
In het centrum van Winterswijk, met alle voorzieningen op loopafstand, bieden wij dit veelzijdige beleggingspand aan. Het object bestaat uit een winkelruimte met magazijn, twee zelfstandige appartementen en een bedrijfsruimte. De combinatie van verschillende functies zorgt voor een stabiele en gespreide huuropbrengst.
Ligging
Het pand is gelegen op een uitstekende centrum locatie in Winterswijk. Winkels, horeca, supermarkten, openbaar vervoer en overige dagelijkse voorzieningen bevinden zich op loopafstand. De locatie kenmerkt zich door een levendige omgeving en een goede bereikbaarheid.
Indeling en gebruik
- Winkelruimte op de begane grond met bijbehorend magazijn
- Twee zelfstandige appartementen, geschikt voor verhuur
- Bedrijfsruimte met diverse gebruiksmogelijkheden
Deze mix van wonen en werken maakt het pand aantrekkelijk voor een brede doelgroep en beperkt het beleggingsrisico.
Beleggingskenmerken
- Centrumligging met alle voorzieningen op loopafstand
- Combinatie van commerciële ruimten en woningen
- Meerdere huurders en gespreide inkomsten
- Interessant voor zowel particuliere als professionele beleggers
Resume
Een solide beleggingsobject op een gewilde locatie in het centrum van Winterswijk, met een functionele indeling en een aantrekkelijk langetermijnperspectief.
Misterstraat 48 (winkel met magazijn):
Indeling en grootte:
Winkelruimte: 194 m²
Magazijn: ca. 200 m²
Front winkelruimte: ca. 10 meter
Opleveringsniveau Misterstraat 48 :
Het object kent een opleveringsniveau in de huidige staat inclusief de navolgende voorzieningen :
- verwarming
- systeemplafond
- pantry en toilet
- verlichting
- airco units
Parkeren :
Winterswijk kent vrij parkeren op parkeerplaatsen welke rond om het centrum zijn gelegen.
Laden en lossen is mogelijk aan de achterzijde van het object.
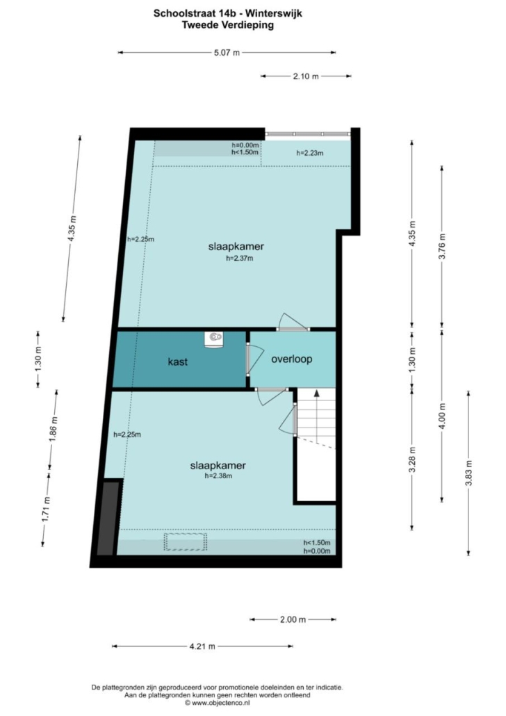
Schoolstraat 14A en 14B:
Twee zelfstandige bovenwoningen met berging op de begane grond. Aanvullend is per woning 1 parkeerplaats te huur.
Indeling woningen:
-Begane grond:
Centrale entree met toegang tot de bergingen en het trappenhuis.
-Eerste verdieping:
Het appartement bevindt zich op de eerste verdieping. Via het terras bereik je de gezamenlijke entree met toegang tot de hal van het appartement. Vanuit de hal heb je toegang tot de provisiekast, trapkast, keuken en badkamer. De badkamer is voorzien van een douche, toilet, wastafel en een aansluiting voor de wasmachine.
De keuken is uitgerust met een gasfornuis, afzuigkap en spoelbak en biedt directe toegang tot het terras. Vanuit de keuken kom je in de ruime en lichte woonkamer, die voldoende ruimte biedt voor zowel een eethoek als een comfortabele zithoek
-Tweede verdieping:
Op de tweede verdieping bevinden zich twee ruime slaapkamers. Daarnaast is er een aparte technische ruimte met de opstelling van de C.V.-ketel en de mechanische ventilatie.
De woningen zijn voorzien van zelfstandige nutsaansluitingen en voorzien van de normaal gebruikelijke technische installatie.
Schoolstraat 16:
Magazijn/opslagruimte ca. 200 m2
Parkeren
Winterswijk kent vrij parkeren op parkeerplaatsen welke rond om het centrum zijn gelegen.
Laden en lossen is mogelijk aan de achterzijde van het object. Op het eigen terrein zijn voor de woningen aanvullen een parkeerplaats te huur. Voor de winkel is een parkeerplaats beschikbaar.
Aan deze objectinformatie kunnen geen rechten worden ontleend en deze informatie kan niet als aanbieding of offerte worden beschouwd. Indien u een aanbieding wenst, kan de makelaar deze, na goedkeuring door de opdrachtgever, op basis van specifieke gegevens verzorgen.
Kenmerken
Overdracht
- Vraagprijs
- op aanvraag
- Aangeboden sinds
- 06 februari 2026
- Status
- beschikbaar
Bouw
- Type
- Winkelruimte
- Bouwjaar
- 1920
