Capitool 50, 7521PL ENSCHEDE
Huurprijs: € 153,- per m² p.j.
Omschrijving
Op het Business & Science Park worden diverse kantoren op de eerste verdieping van dit representatieve kantoorgebouw voor verhuur aangeboden. Iedere verdieping heeft de beschikking over een eigen pantry, toiletvoorzieningen en algemene ruimte. Op eigen terrein zijn parkeervoorzieningen aanwezig. Bij dit object wordt er een ALL-IN tarief gerekend en hoeft er enkel door huurder een internetabonnement worden afgesloten bij een partner.
Indeling (beschikbare ruimten):
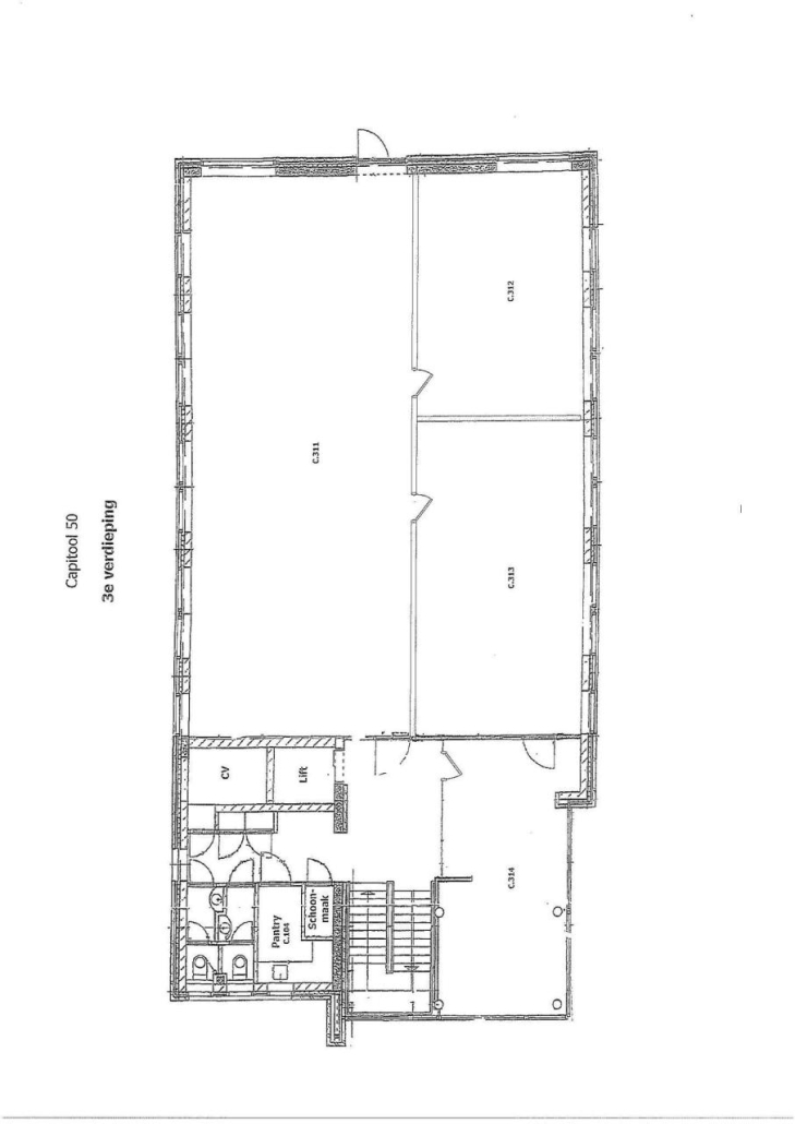
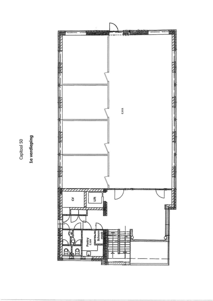
1e Verdieping;
-Per 1-11-2025 kantoor C.117, 17,6 m2.
-Per 1-4-2026 kantoor C.111, 26,2 m2.
-Per 1-4-2026 kantoor C.112/113 35,7 m2.
-Per 1-4-2026 kantoor C.114, 16,6 m2.
-Per 1-4-2026 kantoor C.116, 17,6 m2
Bereikbaarheid:
Het object is uitstekend bereikbaar door de ligging nabij de drukke doorgaande weg Enschede-Hengelo. De op- en afrit van de A35 en de A1 is gelegen op slechts enkele autominuten. Het NS-/busstation Drienerlo is gelegen in de onmiddellijke nabijheid.
Voorzieningen:
- representatieve entree;
- toiletgroepen per etage;
- pantry per etage;
- lift;
- verwarming;
- systeemplafonds met verlichtingsarmaturen;
- tapijt (kantoren);
- kabelgoten;
- topkoeling;
- elektrisch bedienbare zonnescreens;
- luxaflex (begane grond).
Huurprijs:
€ 152,95,- per m² per jaar te vermeerderen met BTW.
Naast de huurprijs worden de volgende kosten doorberekend: (voor de goede orde zij vermeld dat genoemde prijzen over het netto oppervlakte worden berekend).
Gebouwgebonden kosten:
Schoonmaak (kantoorruimten en algemene ruimten), ARBO-zaken, bedrijfshulpverlening en milieutoeslag.
Servicekosten:
Afvalverwerking, bewaking, goederenafhandeling, huismeesterfunctie, receptie/bezoekers-opvang, postverzorging, catering, repro en 5 uur gratis vergaderruimte per maand.
Algemene kosten:
Deze kosten zijn o.a. voor stoffering, verlichtingsarmaturen, brandblusinstallaties, parkeerplaatsen, rijwielstalling, veiligheidssloten, toeslag t.b.v. algemene faciliteiten (sanitair, pantry, garderobe, gangen, technische ruimten en voorzieningen).
De huur, alsmede voornoemde kosten bedragen totaal € 405,65 per m² per jaar te vermeerderen met BTW (prijs 2026).
Energietoeslag:
Voor gas, water en elektra wordt door BTC-Twente maandelijks een voorschotbedrag in rekening gebracht, gebaseerd op het nett gehuurde oppervlak. Zodra de afrekening door de nutsbedrijven heeft plaatsgevonden volgt per huurder een definitieve afrekening gebaseerd op deze eindafrekening.
Aanvaarding:
Per direct.
Aan deze informatie kunnen geen rechten worden ontleend en deze informatie kan niet als aanbieding
of offerte worden beschouwd. Indien u een aanbieding wenst, kan de makelaar deze, na goedkeuring
door de opdrachtgever, op basis van specifieke gegevens verzorgen.
Kenmerken
Overdracht
- Huurprijs
- € 153,- per vierkante meter p.j.
- Aangeboden sinds
- 29 april 2026
- Status
- beschikbaar
Bouw
- Type
- Kantoorruimte
- Bouwjaar
- na 20012010



