Amerikalaan 28, 7681NB VROOMSHOOP
Huurprijs: op aanvraag
Omschrijving
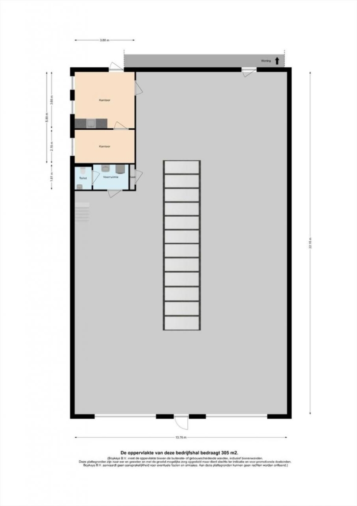
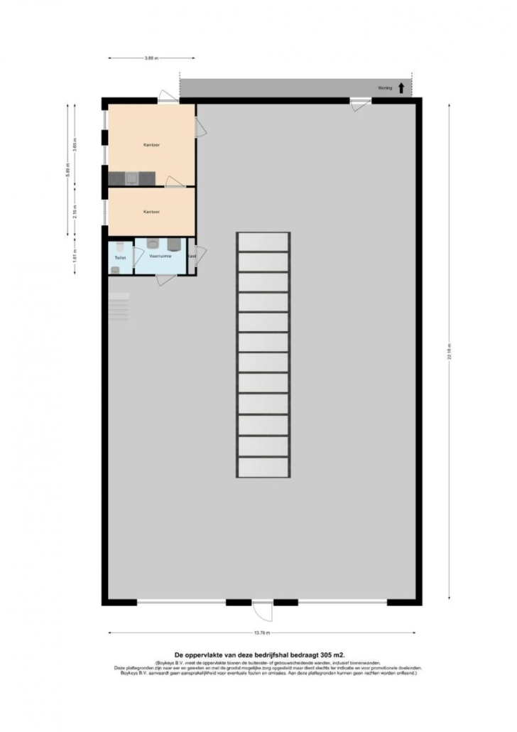
Op bedrijventerrein Vroomshoop-Oost is voor de verhuur een deel van de zo goed als nieuwe bedrijfshal met een oppervlak van totaal ca. 305 m2 beschikbaar. Deze hal is voorzien van een inpandige kantine en kantoorruimte. In overleg met de eigenaar kan de grootte van het te huren deel worden bepaald met een maximum van circa 275 m2.
Bedrijventerrein Vroomshoop-Oost is zeer goed bereikbaar via de Tonnendijk, die middels de Sibculoseweg te Westerhaar-Vriezenveensewijk, direct aansluit op de Rijksweg N36 (Almelo-Hardenberg).
Voorzieningen:
-volledig geïsoleerd
-twee (elektrisch bedienbare) overheaddeuren
-1 separate loopdeur tussen de overheaddeuren
-parkeren kan zowel op eigen terrein (voor de bedrijfshal) als langs de openbare weg
-verwarming d.m.v. vloerverwarming
-sanitair ruimte
-brandslang
-krachtstroom
Kenmerken
Overdracht
- Huurprijs
- op aanvraag
- Aangeboden sinds
- 16 mei 2022
- Status
- beschikbaar
Bouw
- Type
- Bedrijfsruimte
- Bouwjaar
- 2009



