Schierstins 28, 7608XX ALMELO
Vraagprijs: € 319.500,- k.k.
Omschrijving
Moderne tussenwoning met zonnige tuin in Schelfhorst
In de geliefde en groene wijk Schelfhorst staat deze uitstekend onderhouden tussenwoning met een heerlijke tuin op het zuiden. De woning is de afgelopen jaren op diverse punten gemoderniseerd en biedt comfortabel en eigentijds woonplezier voor het hele gezin. De recent vernieuwde achtertuin is fraai aangelegd en voorzien van een sfeervolle overkapping, een perfecte plek om het hele jaar door van het buitenleven te genieten.
Begane grond
Via de ruime hal met meterkast, garderoberuimte en modern toilet (hangcloset met fonteintje) betreed je de woning. Aan de voorzijde bevindt zich de keuken, vernieuwd in 2020 en uitgerust met diverse inbouwapparatuur. De tuingerichte woonkamer ligt aan de achterzijde en beschikt over een tuindeur naar de zonnige achtertuin. De gehele begane grond is voorzien van comfortabele vloerverwarming.
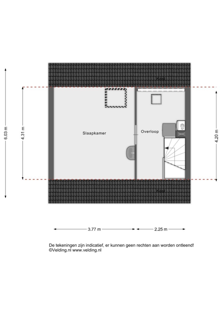
Eerste verdieping
Hier bevinden zich drie ruime slaapkamers en een nette badkamer, eveneens vernieuwd in 2020. De badkamer is modern afgewerkt en praktisch ingericht. Op de overloop is daarnaast een ruime vaste kast aanwezig. Via een vaste trap bereik je de tweede verdieping.
Tweede verdieping
De tweede verdieping beschikt over een ruime overloop met de opstelplaats voor de cv-ketel en wasmachine. Daarnaast bevindt zich hier de vierde slaapkamer, ideaal als extra slaap-, werk- of hobbykamer.
Bijzonderheden:
-Woonoppervlakte: 126 m²
-Perceeloppervlakte: 147 m²
-Inhoud: 433 m³
-Verwarming middels CV-ketel
-Goede woonomgeving nabij alle voorzieningen;
-Energielabel: B
Een instapklare gezinswoning met vier slaapkamers, moderne voorzieningen en een zonnige tuin op een fijne locatie in Schelhorst. Maak snel een afspraak voor een bezichtiging!
Extra bijzonderheden:
-Er is pas sprake van een rechtsgeldige koopovereenkomst als de particuliere verkoper en de particuliere koper de koopovereenkomst hebben ondertekend (schriftelijkheidsvereiste). Een bevestiging van de mondelinge overeenstemming per e-mail of een toegestuurd concept van de koopovereenkomst worden niet gezien als een "ondertekende overeenkomst".
- Er wordt ten behoeve en op verzoek van verkoper een bankgarantie/waarborgsom van 10% van de koopsom opgenomen.
Interesse in deze woning? Schakel direct uw eigen aankoopmakelaar in. Uw aankoopmakelaar komt op voor uw belang en bespaart u tijd, geld en zorgen. Adressen van collega aankoopmakelaars in Twente vindt u op Funda.nl.
- Er wordt een ouderdomsclausule in de te sluiten koopovereenkomst opgenomen.
- Er wordt een asbestclausule in de te sluiten koopovereenkomst opgenomen.
Aan deze objectinformatie kunnen geen rechten worden ontleend en deze informatie kan niet als aanbieding of offerte worden beschouwd. Indien u een aanbieding wenst, kan de makelaar deze, na goedkeuring door de opdrachtgever, op basis van specifieke gegevens verzorgen.
Kenmerken
Overdracht
- Vraagprijs
- € 319.500,- k.k.
- Aangeboden sinds
- 27 februari 2026
- Status
- beschikbaar
Bouw
- Type
- Woonhuis
- Soort woning
- eengezinswoning
- Type woning
- tussenwoning
- Bouwjaar
- 1972
- Ligging
- in woonwijk
Oppervlakten en inhoud
- Woonopp.
- 126 m²
- Perceelopp.
- 147 m²
- Inhoud
- 433 m³
Indeling
- Kamers
- 5
- Slaapkamers
- 4
Energie
- Energielabel
- B
Buitenruimte
- Tuin oppervlakte
- 70
- Tuin
- achtertuin, voortuin
- Hoofd tuin
- achtertuin
- Hoofd tuin opp.
- 44 m²
- Tuin ligging
- zuid
Parkeergelegenheid
- Garage
- geen garage

