Westerweg 0ong, 7685PZ Beerzerveld
Koopsom: € 395.000,- v.o.n.
Omschrijving
Wonen aan het water in Beerzerveld!
WONING NR. 1
Op een prachtige plek, direct aan het kanaal Almelo–De Haandrik, realiseert Hutten Vastgoed een stijlvol woonplan met een drietal geschakelde woningen aan de Westerweg in Beerzerveld. Deze moderne huizen zijn volledig gasloos en uitstekend geïsoleerd, wat zorgt voor lage energielasten en een duurzame toekomst. Dankzij de onderhoudsarme kunststof kozijnen en hoogwaardige materialen geniet u bovendien van een woning die nauwelijks onderhoud vergt. Kortom: comfortabel, ruim en zorgeloos wonen, met zowel lage energie- als onderhoudskosten.
De woningen zijn bijna klaar – wie nu beslist, kan hier volgende maand zijn intrek nemen!
Via een exclusieve toegangsweg rijdt u moeiteloos met de auto naar de achterzijde van het perceel. Hier heeft u volop mogelijkheden om uw woonwensen waar te maken, bijvoorbeeld met de bouw van een garage of een stijlvolle carport.
Deze woningen worden “Turnkey” opgeleverd, kortom u betaalt de woning bij oplevering, zodat u als koper geen bouwrente verschuldigd bent.
Verkoopprijzen staan vast tot 15-10-2025. Wijzigingen in het percentage van de BTW worden doorberekend.
De verkoopprijzen zijn vrij op naam en inclusief:
21% BTW
Architect-kosten, constructiekosten
Heifundering
Aanvraag bouwvergunning, welstandsadvies, elektra en water
Aansluitkosten water, elektra en riolering
Inrichting badkamer en toilet (wand- en vloertegels volgens stelpost)
Zonnepanelen
Kunststof kozijnen
Keramische dakpan (mat zwart)
Gevelsteen vlgs. monster (zie brochure)
CAR verzekering Balans Bouw
Makelaarscourtage en notariskosten
De verkoopprijzen zijn exclusief:
Opties (meerwerk)
Buitenbestrating/beplanting
Kenmerken
Overdracht
- Koopsom
- € 395.000,- v.o.n.
- Aangeboden sinds
- 09 januari 2025
- Status
- Verkocht onder voorbehoud
Bouw
- Type
- Woonhuis
- Soort woning
- eengezinswoning
- Type woning
- hoekwoning
- Bouwjaar
- 2025
Oppervlakten en inhoud
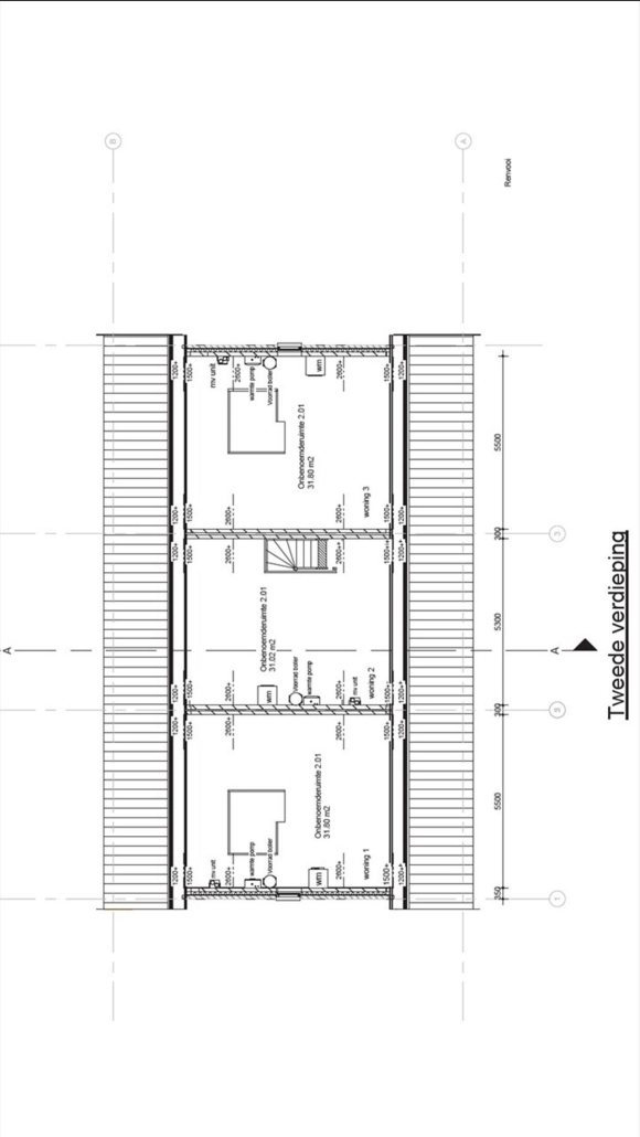
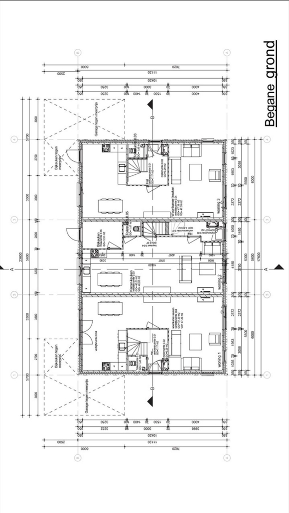
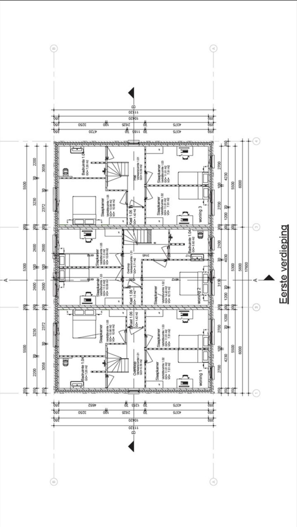
- Woonopp.
- 143 m²
- Perceelopp.
- 293 m²
- Inhoud
- 515 m³
Indeling
- Kamers
- 5
- Slaapkamers
- 3
Parkeergelegenheid
- Garage
- geen garage



