Jura 22, 7007LX DOETINCHEM
Vraagprijs: € 425.000,- k.k.
Omschrijving
Ruim wonen aan het water voor het hele gezin
Deze unieke woning (ca. 157 m²) heeft de uitstraling van een watervilla en biedt alle comfort die een gezin nodig heeft. Geniet van het royale zonneterras van ca.19 m² aan het water en de lichte woonkamer. Er zijn vijf slaapkamers, waaronder één met een eigen balkon, ideaal voor het hele gezin.
Rustige en centrale ligging in Dichteren
De woning ligt aan een doodlopende straat in de rustige, kindvriendelijke wijk Dichteren, waardoor er nauwelijks verkeer is. Basisscholen, sportclubs, supermarkten en winkelcentrum Dichteren zijn vlakbij. Ook station Doetinchem De Huet en de uitvalswegen naar Arnhem, Zutphen en Winterswijk zijn snel bereikbaar. Zo woon je hier rustig én toch centraal.
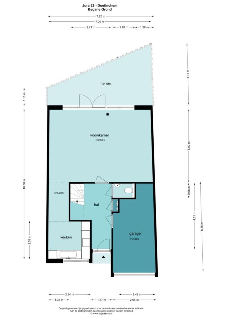
Indeling
Begane grond
Via de entree kom je in de hal met een trapopgang, toilet met fonteintje, meterkast en toegang tot zowel de garage als de woonkamer. De ruime woonkamer met grote raampartijen is heerlijk licht en biedt volop ruimte voor een royale zithoek en een gedeelte voor de eettafel. De halfopen keuken bevindt zich aan de voorzijde en is voorzien van een koel-vriescombinatie, vaatwasser, combi-oven, inductieplaat en afzuigkap. Via de woonkamer heb je toegang tot het zonneterras van ca. 19 m². De ingebouwde garage is voorzien van een overheaddeur en elektra.
Eerste verdieping
De overloop geeft toegang tot vier slaapkamers, waaronder één slaapkamer met een dakterras dat tevens uitkijkt over het water. De badkamer is compleet uitgerust met een ligbad, inloopdouche, twee wastafels en een toilet.
Tweede verdieping
Je komt terecht op de overloop die toegang biedt tot de wasruimte en de vijfde slaapkamer, die ook kan worden gebruikt als een grote hobbykamer. De wasruimte is voorzien van een wasmachineaansluiting en de cv-opstelling.
Pluspunten:
- Woonoppervlakte ca. 157 m²
- Bouwjaar 2002;
- Energielabel A;
- 5 slaapkamers;
- inpandige garage;
- Zonneterras van ca. 19 m² aan het water
- Gelegen in de wijk Dichteren, nabij voorzieningen, scholen en uitvalswegen
Geniet van ruim en comfortabel wonen aan het water. Wij laten de woning graag aan je zien tijdens een bezichtiging.
Een brochure van deze woning is via Funda aan te vragen via de link - vraag brochure aan - in het rechtermenu, onze website of telefonisch op te vragen bij ons kantoor.
Er is pas sprake van een rechtsgeldige koopovereenkomst als de particuliere verkoper en de particuliere koper de koopovereenkomst hebben ondertekend (schriftelijkheidsvereiste). Een bevestiging van de mondelinge overeenstemming per e-mail of een toegestuurd concept van de koopovereenkomst worden niet gezien als een "ondertekende overeenkomst".
Er wordt ten behoeve en op verzoek van verkoper een bankgarantie/waarborgsom van 10% van de koopsom opgenomen.
Er wordt een niet-zelfbewoningsclausule in de te sluiten koopovereenkomst opgenomen.
Aan deze objectinformatie kunnen geen rechten worden ontleend en deze informatie kan niet als aanbieding of offerte worden beschouwd. Indien u een aanbieding wenst, kan de makelaar deze, na goedkeuring door de opdrachtgever, op basis van specifieke gegevens verzorgen.
Kenmerken
Overdracht
- Vraagprijs
- € 425.000,- k.k.
- Aangeboden sinds
- 14 januari 2026
- Status
- Verkocht
Bouw
- Type
- Woonhuis
- Soort woning
- eengezinswoning
- Type woning
- tussenwoning
- Bouwjaar
- 2002
- Ligging
- aan rustige weg, aan water, in woonwijk
Oppervlakten en inhoud
- Woonopp.
- 157 m²
- Perceelopp.
- 123 m²
- Inhoud
- 567 m³
Indeling
- Kamers
- 6
- Slaapkamers
- 5
Energie
- Energielabel
- A
Buitenruimte
- Tuin oppervlakte
- 55
- Tuin
- zonneterras
- Hoofd tuin
- zonneterras
- Hoofd tuin opp.
- 20 m²
- Tuin ligging
- west
Parkeergelegenheid
- Garage
- inpandig
- Garage capactiteit
- 1
