Gezellenlaan 8, 7005AZ DOETINCHEM
Huurprijs: op aanvraag
Omschrijving
Te huur: moderne kantoorruimte, groot ca. 300 m² en ca. 25 m² aandeel gemeenschappelijke ruimte, in het kantoorgebouw annex gezondheidscentrum aan de Gezellenlaan 10 te Doetinchem.
Duurzaamheidsklasse A. Uitstekend gelegen op zichtlocatie en op korte afstand van trein- en busstation, stadscentrum en snelwegaansluiting A18 welke aansluit op de A12/A3 (Arnhem - Oberhausen).
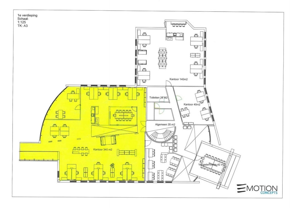
Indeling:
1e verdieping: ca. 300 m² v.v.o.
Metrage is exclusief aandeel gemeenschappelijke ruimten en centrale entree (ca. 25 m²).
Opleveringsniveau:
- Klimaatplafonds;
- Energielabel A;
- Indelingsvarianten mogelijk:
- Centrale entree/ hal:
- Ledverlichting:
- Elektrische laadpaal (complex):
- Volledig geconditioneerd:
- Luxe pantry:
- Vloerbedekking.
Bereikbaarheid:
Het complex is uitstekend bereikbaar zowel per eigen vervoer als openbaar vervoer. Gelegen op korte afstand van de op- en afritten van de A18 en ook het trein- en busstation is op loopafstand gelegen.
Parkeren:
Op het eigen terrein zijn meer dan voldoende parkeerplaatsen aanwezig.
Bijzonderheden:
- Huurprijs is excl. BTW en servicekosten;
- Verhuur vrij van BTW is mogelijk;
- Huurprijs is inclusief energiekosten;
- Servicekosten: ca. € 15,-- per m² per jaar te vermeerderen met BTW, o.a. voor schoonmaak algemene ruimten, onderhoud parkeerterrein e.d.;
- Zekerheidsstelling ter grootte van een kwartaalverplichting huur plus servicekosten en de over het
totaal verschuldigde BTW.
- Door gebruik van nieuwe technieken één van de meest duurzame gebouwen in de regio;
- In het complex zijn tevens gevestigd Poli Dermatologie van het Slingeland Ziekenhuis, VANAD Comvio, Artiflex en GGD;
Aanvaarding:
In overleg.
Aan deze objectinformatie kunnen geen rechten worden ontleend en deze informatie kan niet als aanbieding of offerte worden beschouwd. Indien u een aanbieding wenst, kan de makelaar deze, na goedkeuring door de opdrachtgever, op basis van specifieke gegevens verzorgen.
Kenmerken
Overdracht
- Huurprijs
- op aanvraag
- Aangeboden sinds
- 10 oktober 2025
- Status
- beschikbaar
Bouw
- Type
- Kantoorruimte
- Bouwjaar
- 1992



