Vanekerstraat 207, 7523HN ENSCHEDE
Vraagprijs: € 210.000,- k.k.
Omschrijving
Aan de rand van de wijk Deppenbroek op de 6e verdieping van het gebouw 'Vanekerstaete' gelegen 2-kamerappartement met balkon op het oosten en berging op de begane grond. In de directe omgeving bevindt zich een groot winkelcentrum en het buitengebied is op loopafstand.
Het appartement op nr 207 ligt op een mooie hoogte waardoor je van een prachtig uitzicht kunt genieten.
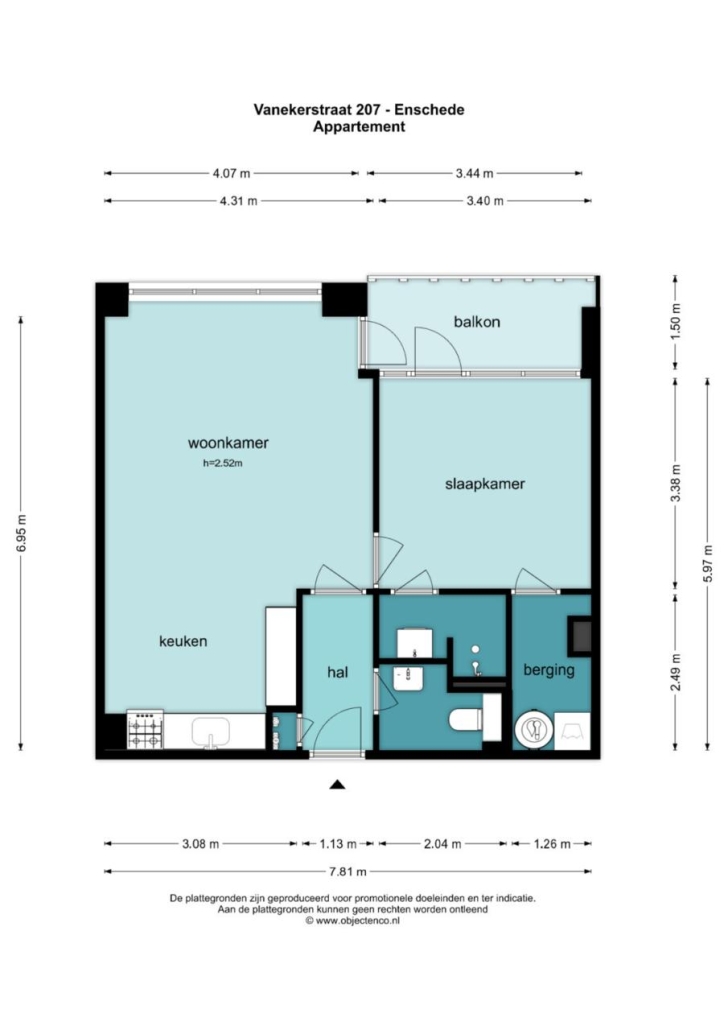
Dit appartement is volledig gemeubileerd en gestoffeerd en uitermate geschikt voor starters. Het betreft een zeer goed onderhouden appartement met een lichte, ruime woonkamer met toegang tot het balkon waar je van het prachtige uitzicht kunt genieten. Een nette open keuken. De keuken is voorzien van een inbouw gasfornuis met afzuigkap, oven, koelkast en magnetron. De ruime slaapkamer is toegankelijk vanuit de woonkamer en heeft ook toegang tot het balkon en de badkamer met douche en wastafelmeubel. Toilet is toegankelijk vanuit de hal. Er is een ruime berging in het appartement met aansluiting voor de wasmachine, droger en de warmwaterboiler (eigendom) bevindt zich hier.
Op de begane grond is een eigen bergruimte/schuur.
Het appartement is gelegen aan de rand van Enschede-Noord, grenzend aan het buitengebied en nabij diverse voorzieningen. Dit fraaie tweekamerappartement heeft vrij uitzicht. Het appartement bevindt zich op de 6e verdieping van het in 2011 gerenoveerde en gemoderniseerde appartementencomplex Vanekerstaete. In 10 minuten is het centrum van Enschede bereikbaar met fiets of openbaar vervoer.
Ideaal voor starters op de woningmarkt!
Indeling:
Begane grond: gesloten entree met videofoonsysteem, brievenbussen, centrale hal met toegang tot liften en gezamenlijke fietsenstallingen. Gang naar trappenhuis en achteringang welke van de buitenzijde uitsluitend voor bewoners toegankelijk is.
Entree, hal met meterkast, videofoonsysteem, toegang tot de woonkamer en het toilet.
Woonkamer met open keuken, toegang tot balkon en slaapkamer.
Badkamer met douche en wastafelmeubel.
Aangrenzend aan slaapkamer ruime berging met aansluiting voor wasmachine en droger, warmwaterboiler (eigendom). Vanuit slaapkamer is het balkon ook toegankelijk.
Op de begane grond bevindt zich een bergruimte/schuur.
Bijzonderheden:
- Volledig gemeubileerd
- Actieve vereniging van eigenaren, maandelijkse bijdrage van € 285,84 inclusief watergebruik en voorschot stookkosten
- Gelegen aan de rand van het buitengebied
- Ruim voldoende parkeergelegenheid op eigen terrein
- In 2011 grotendeels gerenoveerd complex
- Kunststof kozijnen met isolerende beglazing
- Warm water middels boiler (eigendom)
- Gemoderniseerde meterkast
Bijzonderheden koopovereenkomst:
- Er is pas sprake van een rechtsgeldige koopovereenkomst wanneer de particuliere verkoper en koper de koopovereenkomst schriftelijk hebben ondertekend. Een bevestiging van mondelinge overeenstemming per e-mail of een toegestuurd concept van de koopovereenkomst geldt niet als "ondertekende overeenkomst."
- Ten behoeve en op verzoek van de verkoper wordt een bankgarantie/waarborgsom van 10% van de koopsom opgenomen.
- Tevens zal er in de koopovereenkomst een "niet zelfbewoningsclausule" worden opgenomen.
Interesse in dit huis? Schakel direct uw eigen NVM-aankoopmakelaar in. Uw NVM aankoopmakelaar komt op voor uw belang en bespaart u tijd, geld en zorgen. Adressen van collega NVM aankoopmakelaars in Twente vindt u op Funda.nl
Aan deze objectinformatie kunnen geen rechten worden ontleend en deze informatie kan niet als aanbieding of offerte worden beschouwd. Indien u een aanbieding wenst, kan de makelaar deze, na goedkeuring door de opdrachtgever, op basis van specifieke gegevens verzorgen.
Kenmerken
Overdracht
- Vraagprijs
- € 210.000,- k.k.
- Aangeboden sinds
- 29 oktober 2025
- Status
- Verkocht onder voorbehoud
Bouw
- Type
- Appartement
- Soort woning
- portiekflat
- Bouwjaar
- 1969
- Ligging
- in woonwijk
Oppervlakten en inhoud
- Woonopp.
- 51 m²
- Inhoud
- 164 m³
Indeling
- Kamers
- 2
- Slaapkamers
- 1
Energie
- Energielabel
- E
Parkeergelegenheid
- Garage
- geen garage



