Melenhorst 27, 7581WD LOSSER
Vraagprijs: € 340.000,- k.k.
Omschrijving
Mooie tussenwoning in de kindvriendelijke wijk "De Saller" met drie slaapkamers, nette keuken en een diepe, zonnige tuin op het zuiden!
In een rustig en geliefd deel van de kindvriendelijke woonwijk De Saller staat deze fijne tussenwoning. De woning beschikt over een lichte woonkamer, een nette keuken, drie goed bemeten slaapkamers (met de mogelijkheid voor een vierde) en een diepe achtertuin op het zuiden met houten berging.
Een ideale woning voor starters én jonge gezinnen die graag hun eigen woonwensen willen realiseren.
De achtertuin is een echt pluspunt: dankzij de gunstige ligging op het zuiden geniet je hier de hele dag van de zon, maar er zijn door de diepte ook altijd schaduwrijke plekjes te vinden. Een heerlijke plek om te ontspannen, te spelen of te genieten van lange zomeravonden.
Ook de omgeving is perfect: op loop- en fietsafstand vind je scholen, sportclubs en medische voorzieningen. Voor een wandeling of fietstocht ben je zo in het groene buitengebied van Losser. Het gezellige dorpscentrum ligt op ongeveer 10 minuten fietsen en biedt een ruim aanbod aan winkels, cafés en restaurants.
Indeling:
Begane grond:
Entree/hal met trapopgang, meterkast en toiletruimte. De lichte woonkamer bevindt zich aan de achterzijde en biedt direct toegang tot de achtertuin. Aan de voorzijde ligt de open keuken, netjes en praktisch ingericht en voorzien van een gaskookplaat, oven, koelkast en vaatwasser.
Eerste verdieping:
Overloop met toegang tot drie ruime slaapkamers. De volledig betegelde badkamer is uitgerust met een inloopdouche, toilet en wastafel.
Tweede verdieping:
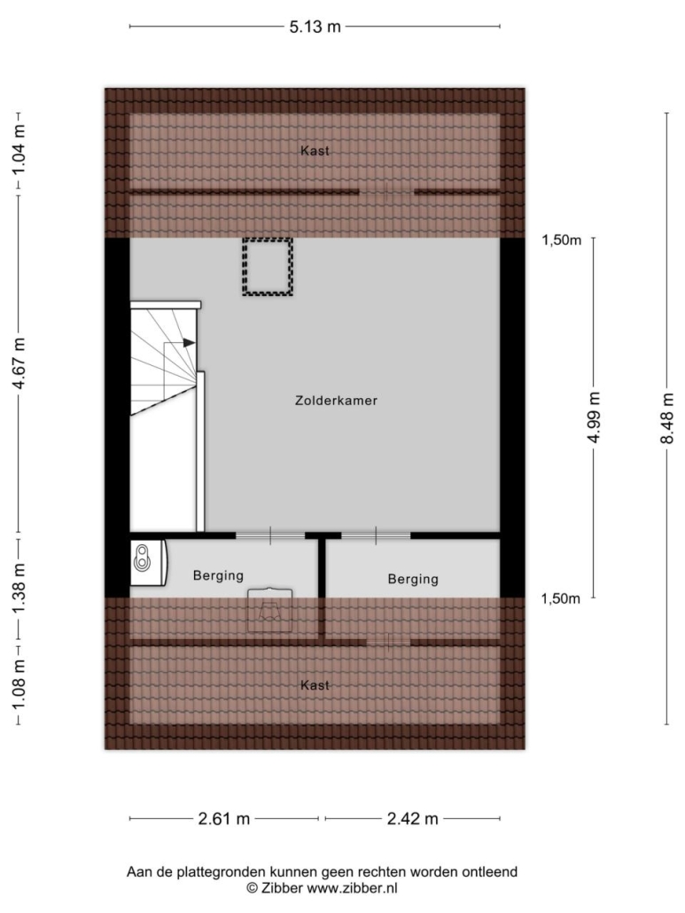
Open zolderverdieping met was- en droogopstelling, bergruimte en voldoende mogelijkheden om hier eenvoudig een vierde slaapkamer te realiseren dankzij de royale hoogte en beschikbare ruimte.
Buiten:
De diepe achtertuin op het zuiden biedt veel privacy en zowel zon- als schaduwplekken. Achterin de tuin staat een ruime houten berging, ideaal voor fietsen en extra opslag.
Bijzonderheden:
- Bouwjaar: 2012;
- Woonoppervlakte: 113 m²;
- Perceeloppervlakte: 135 m²;
- Energielabel: A;
- De woning is goed geïsoleerd;
- Nabij het buitengebied gelegen, maar toch op 10 fietsminuten van de dorpskern;
- Zowel een nette keuken en badkamer;
- Drie ruime slaapkamers, potentieel ruimte voor een vierde op zolder;
- Ruime tuin op het zuiden met vrijstaande houtenberging.
Kortom: Ben je op zoek naar een ruime, goed gelegen tussenwoning met veel potentie, een diepe zonnige tuin en alle voorzieningen binnen handbereik? Dan is deze woning in De Saller absoluut een bezichtiging waard!
Interesse gekregen in deze woning, maak dan snel een afspraak!
Bijzonderheden koopovereenkomst:
- Er is pas sprake van een rechtsgeldige koopovereenkomst als de particuliere verkoper en de particuliere koper de koopovereenkomst hebben ondertekend (schriftelijkheidsvereiste).
Een bevestiging van de mondelinge overeenstemming per e-mail of een toegestuurd concept van de koopovereenkomst wordt niet gezien als een "ondertekende overeenkomst";
- Er wordt ten behoeve en op verzoek van verkoper een bankgarantie/waarborgsom van 10% van de koopsom opgenomen;
- Er wordt een ouderdomsclausule in de te sluiten koopovereenkomst opgenomen;
- Er wordt een ''verkoper geen bewoner clausule'' in de te sluiten koopovereenkomst opgenomen.
Interesse in dit huis? Schakel direct uw eigen NVM-aankoopmakelaar in. Uw NVM-aankoopmakelaar komt op voor uw belang en bespaart u tijd, geld en zorgen.
Adressen van collega NVM-aankoopmakelaars in Twente vindt u op Funda.nl
Aan deze objectinformatie kunnen geen rechten worden ontleend en deze informatie kan niet als aanbieding of offerte worden beschouwd. Indien u een aanbieding wenst, kan de makelaar deze, na goedkeuring door de opdrachtgever, op basis van specifieke gegevens verzorgen.
Kenmerken
Overdracht
- Vraagprijs
- € 340.000,- k.k.
- Aangeboden sinds
- 23 februari 2026
- Status
- beschikbaar
Bouw
- Type
- Woonhuis
- Soort woning
- eengezinswoning
- Type woning
- tussenwoning
- Bouwjaar
- 2012
- Ligging
- aan rustige weg, in woonwijk
Oppervlakten en inhoud
- Woonopp.
- 113 m²
- Perceelopp.
- 135 m²
- Inhoud
- 401 m³
Indeling
- Kamers
- 4
- Slaapkamers
- 3
Energie
- Energielabel
- A
Buitenruimte
- Tuin oppervlakte
- 85
- Tuin
- achtertuin, voortuin
- Hoofd tuin
- achtertuin
- Hoofd tuin opp.
- 66 m²
- Tuin ligging
- zuid
Parkeergelegenheid
- Garage
- geen garage
