De Hollandergraven 9, 7676ED Westerhaar-Vriezenveensewijk
Vraagprijs: € 309.000,- k.k.
Omschrijving
Goed onderhouden hoekwoning, voorzien van inpandige berging, comfortabele tuinkamer en separate riante berging (grootte van een garage) gelegen op een vrije hoek, op een perceel van maar liefst 269 m2 eigen grond. Deze ruime gezinswoning is van binnen modern afgewerkt en voorzien van een eigentijdse badkamer, een moderne hoekkeuken en kunststof kozijnen, waardoor het onderhoud aan de buitenzijde minimaal is. Dankzij dak-, spouw-, vloer- en glasisolatie én 9 zonnepanelen beschikt de woning over een energiezuinig label A.
Binnen ca. 35 autominuten zijn steden als Enschede, Hengelo, Almelo en Zwolle bereikbaar.
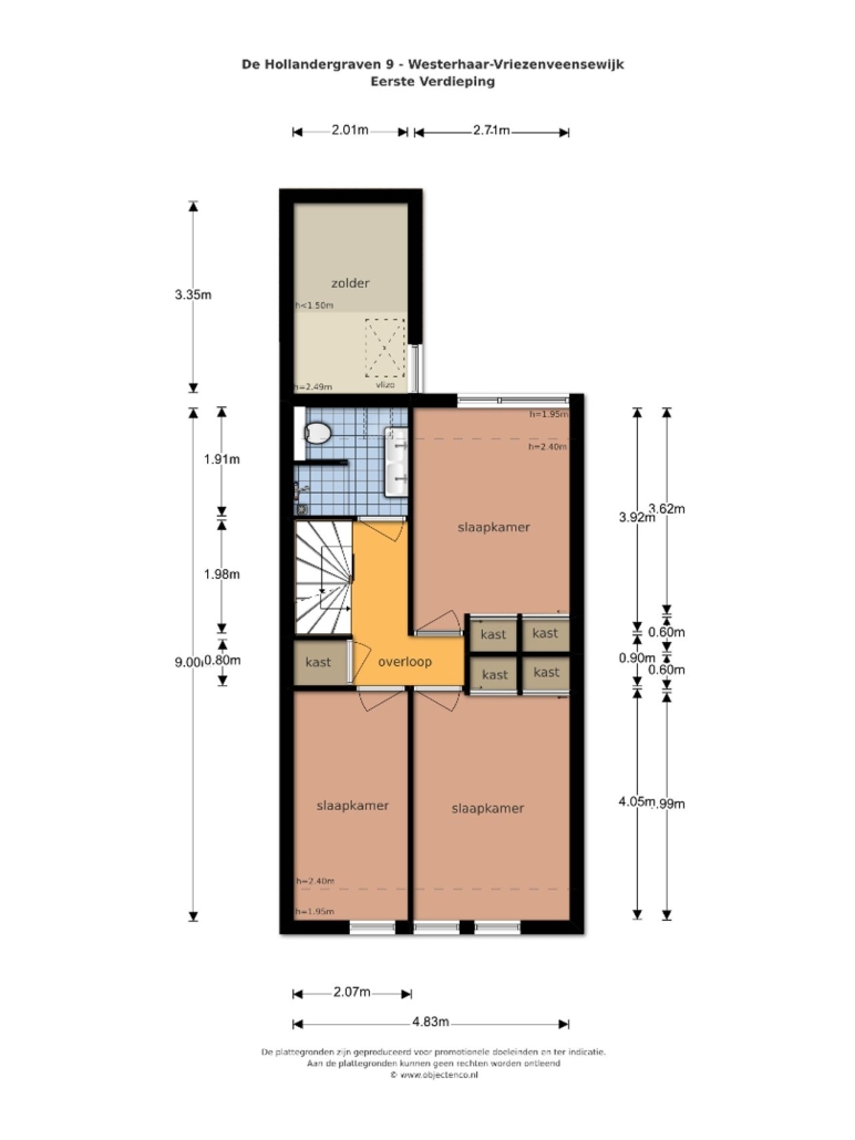
Deze keurig onderhouden gezinswoning kent de volgende indeling:
Begane grond: entrée/hal (via buitenom te bereiken meterkast); l-vormige woonkamer voorzien van PVC vloer en gesloten trapopgang naar de 1e verdieping; open keuken voorzien van lichte en moderne inbouwkeuken; geïsoleerde inpandige bijkeuken voorzien van achteringang, vlizotrap naar bergzolder en moderne toiletruimte.
1e verdieping: ruime overloop voorzien van inbouwkast en trapopgang naar de 2e verdieping; 3 moderne slaapkamers waarvan 2 voorzien van vaste kasten; moderne badkamer.
2e verdieping: overloop; complete 4e slaapkamer.
De open keuken is voorzien van een moderne hoekopgestelde inbouwkeuken (2011) met daarin een inductiekookplaat (2024 vervangen), RVS afzuigkap, koelkast, vrieskast, vaatwasser en combi- magnetron
De luxe en moderne badkamer (2017) is voorzien van een inloopdouche, wastafelmeubel, hangtoilet en designradiator.
Algemeen:
-dit huis is gebouwd in 1980
-de warmwater- en verwarmingsvoorziening geschiedt middels een gasgestookte c.v.-installatie met Nefit HR combi-ketel, geïnstalleerd in 2005
-de woning is voorzien van dak-, spouw-, vloer- (na-isolatie) en glasisolatie en beschikt over energielabel A
-in 2020 is de gehele woning voorzien van nieuwe kunststof kozijnen incl. draai-/ kiepramen en HR++ beglazing
-in 2022 is de begane grondvloer na-geïsoleerd
-in 2022 is de riante berging (grootte van een garage) gerealiseerd en in 2025 is de tuinkamer voorzien van glazen schuifwanden
-gelegen op slechts 10 fietsminuten van alle belangrijke voorzieningen die het dorp te bieden heeft (busstation, winkels, activiteitencentrum, sport accommodatie)
-bij koop wordt een waarborgsom/bankgarantie van 10% van de koopsom van de koper verlangd
Resumerend: een goed onderhouden, moderne, kant en klare gezins- en/of starterswoning.
Kenmerken
Overdracht
- Vraagprijs
- € 309.000,- k.k.
- Aangeboden sinds
- 17 oktober 2025
- Status
- Verkocht onder voorbehoud
Bouw
- Type
- Woonhuis
- Soort woning
- eengezinswoning
- Type woning
- hoekwoning
- Bouwjaar
- 1980
Oppervlakten en inhoud
- Woonopp.
- 111 m²
- Perceelopp.
- 269 m²
- Inhoud
- 400 m³
Indeling
- Kamers
- 5
- Slaapkamers
- 4
Energie
- Energielabel
- A
Buitenruimte
- Tuin
- achtertuin
- Hoofd tuin
- achtertuin
- Hoofd tuin opp.
- 93 m²
Parkeergelegenheid
- Garage
- parkeerplaats
