Braamkamp 160, 7206HH ZUTPHEN
Vraagprijs: € 350.000,- k.k.
Omschrijving
Verrassend ruime tussenwoning met berging, veranda en eigen parkeerplaats!
Op zoek naar een royale gezinswoning op een fijne locatie in Zutphen? Deze tussenwoning uit 1978 biedt met ca. 139 m² woonoppervlak alle ruimte die je zoekt! De woning beschikt over een aangebouwde berging met vliering, een besloten achtertuin met sfeervolle veranda én een eigen parkeerplaats op het terrein.
Indeling
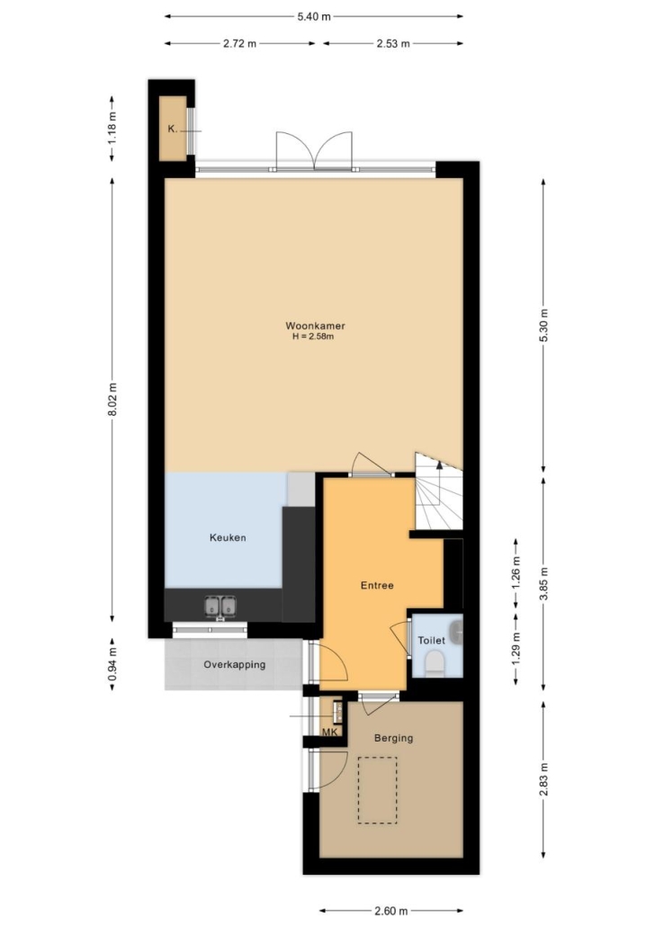
Begane grond:
Via de overdekte entree kom je binnen in de hal met garderobenis, toiletruimte met hangcloset en fonteintje, en doorgang naar de berging. De tuingerichte woonkamer is voorzien van een laminaatvloer en schuifdeur naar het terras, waardoor binnen en buiten heerlijk in elkaar overlopen. De halfopen keuken in hoekopstelling heeft een granieten werkblad en is uitgerust met diverse inbouwapparatuur, waaronder een inductiekookplaat met afzuigkap, koelkast, vaatwasser en combi-magnetron.
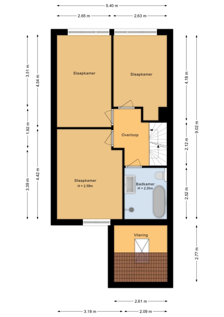
1e Verdieping:
Overloop met toegang tot drie ruime slaapkamers. De badkamer is compleet uitgevoerd met ligbad, douche, wastafel en tweede toilet.
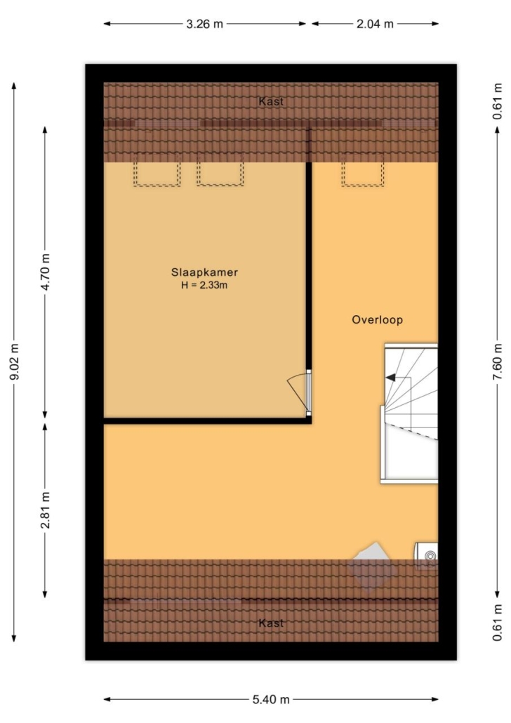
2e Verdieping: Grote overloop met veel bergruimte, cv-installatie (Intergas, 2017), wasmachine-/droger aansluiting en toegang tot een royale vierde slaapkamer met twee dakramen.
Algemeen:
De besloten achtertuin met achterom is een fijne plek om te genieten van rust en privacy. De sfeervolle veranda maakt het extra aantrekkelijk om hier lange avonden door te brengen.
De woning ligt in een kindvriendelijke wijk met veel voorzieningen op loopafstand: basisscholen, kinderboerderij, bushalte en winkelcentrum De Brink. Ook middelbare scholen, het historische centrum van Zutphen, het NS-station en de IJssel met haar uiterwaarden zijn dichtbij gelegen.
Overig:
Bouwjaar: 1978
Woonoppervlak: ca. 139 m²
Perceel met eigen parkeerplaats
Energielabel: C
Kortom: een ruime, complete gezinswoning met alle voorzieningen in de buurt en een heerlijke tuin met veranda!
Aan deze objectinformatie kunnen geen rechten worden ontleend en deze informatie kan niet als aanbieding of offerte worden beschouwd. Indien u een aanbieding wenst, kan de makelaar deze, na goedkeuring door de opdrachtgever, op basis van specifieke gegevens verzorgen.
Kenmerken
Overdracht
- Vraagprijs
- € 350.000,- k.k.
- Aangeboden sinds
- 13 oktober 2025
- Status
- beschikbaar
Bouw
- Type
- Woonhuis
- Soort woning
- eengezinswoning
- Type woning
- tussenwoning
- Bouwjaar
- 1978
- Ligging
- beschutte ligging, in woonwijk
Oppervlakten en inhoud
- Woonopp.
- 131 m²
- Perceelopp.
- 164 m²
- Inhoud
- 487 m³
Indeling
- Kamers
- 5
- Slaapkamers
- 4
Energie
- Energielabel
- C
Buitenruimte
- Tuin oppervlakte
- 164
- Tuin
- achtertuin, voortuin
- Hoofd tuin
- achtertuin
- Hoofd tuin opp.
- 82 m²
- Tuin ligging
- oost
Parkeergelegenheid
- Garage
- geen garage



