Bathmenseweg 7H519, 7216PB KRING VAN DORTH
Vraagprijs: € 217.500,- v.o.n.
Omschrijving
Aan een beekje gelegen, modern afgewerkt vrijstaande 4+2 persoons recreatiewoning, type Argus, op recreatiepark Landal De Vlinderhoeve.
Landal De Vlinderhoeve is een luxe vakantiepark dat onderdeel is van Landal GreenParks en voorzien van alle benodigde faciliteiten o.a. centrumgebouw met overdekt en buitenzwembad, mini-parkshop, multifunctioneel sportveld en diverse speelvoorzieningen.
Het park biedt rust, ruimte en natuur en ligt in een groene omgeving met ruime kavels op eigen grond. Bosrijke omgeving met waterpartijen aangelegd, wat zorgt voor een open en sfeervol karakter. De natuurlijke inrichting en rustige ligging maken het een ideale plek voor een ontspannen verblijf.
Het park ligt op de grens van Overijssel en Gelderland, in Kring van Dorth. Bezoek de Hanzesteden Zutphen en Deventer of de nabijgelegen plaatsjes zoals Gorssel. Vanuit het gezellige centrum van Gorssel, loop je naar de uiterwaarden. Kies een lekker oeverplekje om de zon achter de IJssel te zien zakken of ga met het pontje naar de overkant. De streek rond Landal De Vlinderhoeve is een groeiende toeristische omgeving, waar u nu de kans heeft op de koop van een verblijf op eigen grond.
Koopsom recreatiewoning is exclusief BTW.
Verplichting van beheersovereenkomst met het park, verhuur bemiddelingsovereenkomst is een keuze, geen verplichting. De jaarlijkse parklasten voor 2025 bedragen circa: € 3940,00 incl. BTW.
HIGHLIGHTS:
- Modern afgewerkte vrijstaande recreatiewoning
- Inclusief inventarispakket t.w.v. minimaal €17.500 excl. BTW
- 2 slaapkamers en een bedstede
- Groene en rustige ligging, nabij Hanzesteden Deventer en Zutphen
- 2 parkeerplaatsen op eigen grond
- Gelegen op Landalpark De Vlinderhoeve, voorzien van alle benodigde faciliteiten
- Betaal 0% overdrachtsbelasting, de woning wordt v.o.n. verkocht
- Koopsom recreatiewoning is exclusief BTW
Van dit huis is een eigen internetpagina beschikbaar. Als u de brochure downloadt komt u automatisch op deze pagina. Hier vindt u alle informatie van dit huis.
Interesse in dit huis? Schakel direct uw eigen NVM aankoopmakelaar in.
Uw NVM aankoopmakelaar komt op voor uw belang en bespaart u tijd, geld en zorgen. Adressen van collega NVM kantoren vindt u op Funda.nl.
Aan deze objectinformatie kunnen geen rechten worden ontleend en deze informatie kan niet als aanbieding of offerte worden beschouwd. Indien u een aanbieding wenst, kan de makelaar deze, na goedkeuring door de opdrachtgever, op basis van specifieke gegevens verzorgen.
Kenmerken
Overdracht
- Vraagprijs
- € 217.500,- v.o.n.
- Aangeboden sinds
- 04 oktober 2025
- Status
- beschikbaar
Bouw
- Type
- Woonhuis
- Soort woning
- bungalow
- Type woning
- vrijstaande woning
- Bouwjaar
- 2022
- Ligging
- aan park
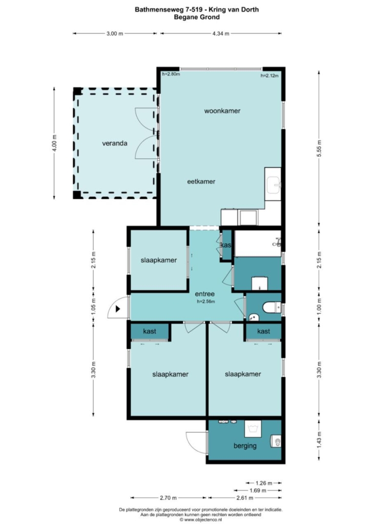
Oppervlakten en inhoud
- Woonopp.
- 61 m²
- Perceelopp.
- 380 m²
- Inhoud
- 200 m³
Indeling
- Kamers
- 3
- Slaapkamers
- 2
Energie
- Energielabel
- A
Buitenruimte
- Tuin
- tuin rondom
Parkeergelegenheid
- Garage
- geen garage
