Arnhemsestraat 14, 6971AR BRUMMEN
Vraagprijs: € 565.000,- k.k.
Omschrijving
In het centrum van het charmante dorp Brummen, op loopafstand van winkels, horeca en voorzieningen, bevindt zich dit sfeervolle en goed onderhouden helft van een dubbel woonhuis (bouwjaar 1918). Een karakteristiek pand met authentieke details, hoge plafonds, paneeldeuren en houten vloeren. De fraai aangelegde tuin, omzoomd door groen, biedt meerdere terrassen, kleurrijke borders en volop privacy. In de tuin vindt u een vrijstaande stenen berging en een knusse veranda, de ideale plek om in alle rust van lange zomeravonden te genieten. De woning beschikt bovendien over een eigen oprit en 9 zonnepanelen.
Indeling:
Onderverdieping:
Praktische provisiekelder, ideaal voor opslag en voorraad.
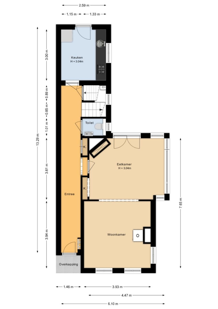
Begane grond:
Een stijlvolle gang met eikenvloerdelen leidt naar de toiletruimte met hangcloset en fonteintje. De kamer en suite met erker ademt sfeer dankzij de houtkachel, fraaie eikenvloerdelen en openslaande tuindeuren naar het terras. De dichte keuken met inrichting in lengteopstelling is voorzien van een natuurstenen werkblad, inbouwapparatuur en een deur naar de tuin.
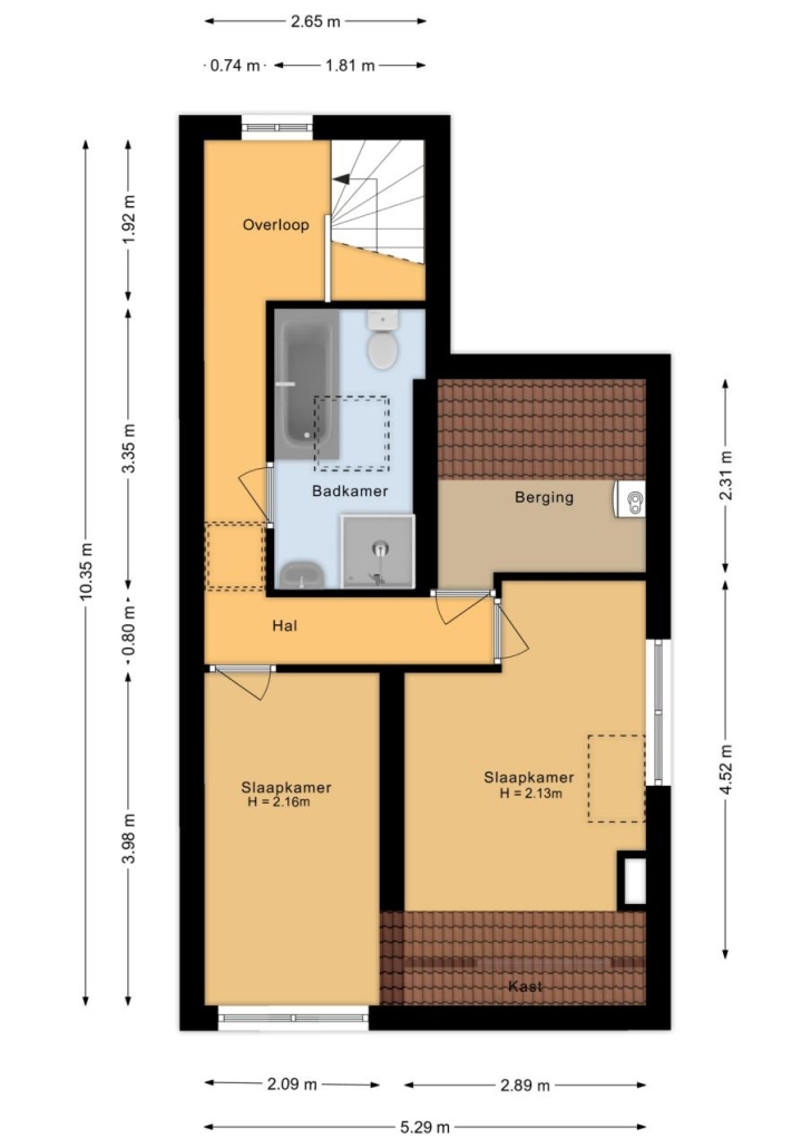
Eerste verdieping:
Overloop met toegang tot het plat dak. Twee zeer royale slaapkamers, beide met wastafel. Eén kamer beschikt over een vaste kast met aansluiting voor wasmachine en droger.
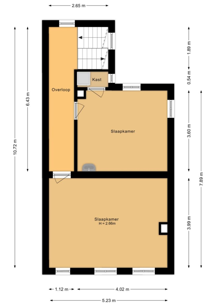
Tweede verdieping:
Overloop, derde en vierde slaapkamer, en een praktische zolderberging. De badkamer is voorzien van neutrale betegeling, ligbad, douche, wastafel en toilet.
Algemeen:
Deze bijzondere woning ligt letterlijk in het hart van Brummen, een dorp dat bekend staat om zijn vriendelijke karakter en groene omgeving. Binnen tien minuten wandelen bereikt u landgoed Groot Engelenburg met golfbaan. Natuurliefhebbers vinden hun geluk met de uiterwaarden van de IJssel en de Veluwezoom op fietsafstand. Dankzij het eigen NS-station bent u in korte tijd in Zutphen, Deventer, Arnhem of Apeldoorn. De nabijgelegen uitvalswegen (A1, A12 en A50) zorgen bovendien voor uitstekende bereikbaarheid.
Wilt u wonen met karakter, comfort en een vleugje geschiedenis? Dan is dit bijzondere huis absoluut een bezichtiging waard.
Aan deze objectinformatie kunnen geen rechten worden ontleend en deze informatie kan niet als aanbieding of offerte worden beschouwd. Indien u een aanbieding wenst, kan de makelaar deze, na goedkeuring door de opdrachtgever, op basis van specifieke gegevens verzorgen.
Kenmerken
Overdracht
- Vraagprijs
- € 565.000,- k.k.
- Aangeboden sinds
- 06 november 2025
- Status
- Verkocht onder voorbehoud
Bouw
- Type
- Woonhuis
- Soort woning
- eengezinswoning
- Type woning
- 2-onder-1-kapwoning
- Bouwjaar
- 1918
- Ligging
- beschutte ligging, in centrum
Oppervlakten en inhoud
- Woonopp.
- 156 m²
- Perceelopp.
- 337 m²
- Inhoud
- 602 m³
Indeling
- Kamers
- 6
- Slaapkamers
- 4
Energie
- Energielabel
- D
Buitenruimte
- Tuin oppervlakte
- 337
- Tuin
- achtertuin, voortuin, zijtuin
- Hoofd tuin
- achtertuin
- Hoofd tuin opp.
- 196 m²
- Tuin ligging
- noord, west
Parkeergelegenheid
- Garage
- parkeerplaats
