Achterhoven 12, 7205AM ZUTPHEN
Vraagprijs: € 525.000,- k.k.
Omschrijving
Op een rustige locatie in de Hoven, nabij de historische binnenstad van Zutphen, staat deze vrijstaande woning met carport, stenen berging en diepe achtertuin op het westen. Dankzij de aanwezigheid van een slaapkamer en badkamer op de begane grond is de woning levensloopbestendig. Hiermee is het huis geschikt voor zowel gezinnen als mensen die gelijkvloers willen wonen.
Indeling:
Begane grond:
Entree, hal met toiletruimte voorzien van staand toilet en fonteintje. De lichte woonkamer heeft een laminaatvloer en een sfeervolle speksteenkachel. De open keuken in hoekopstelling is voorzien van diverse inbouwapparatuur. Vanuit de keuken is er toegang tot een praktische bijkeuken met aansluitingen voor wasmachine en droger, en de cv-installatie (Intergas, 2023). Op de begane grond bevindt zich tevens een ruime slaapkamer met direct toegang tot de badkamer, voorzien van douche en wastafel.
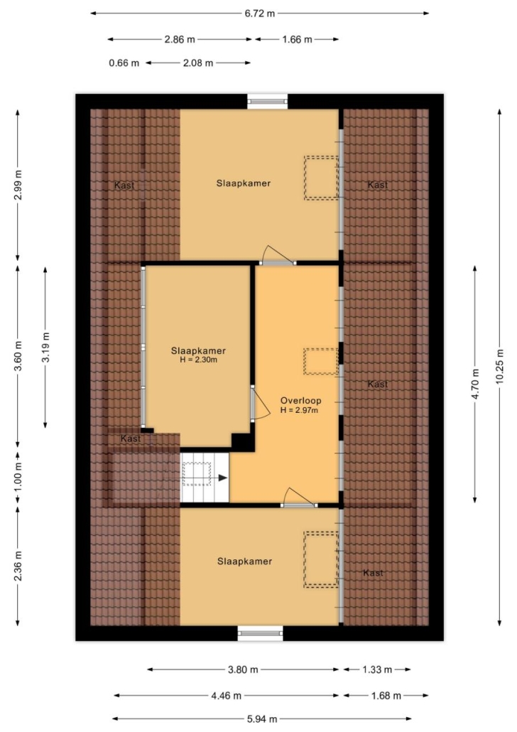
Eerste verdieping:
Op de eerste verdieping bevinden zich drie slaapkamers, waarvan één met een dakkapel. Dankzij de inbouwkasten is er op de gehele verdieping volop bergruimte aanwezig.
Buiten:
De diepe achtertuin is gelegen op het westen, waardoor je de hele middag en avond van de zon kunt genieten. Er is een moestuin, tuinkas en achterin de tuin staat een houten tuinhuisje. De tuin wordt deels omsloten door beukenhagen en groen. De geïsoleerde stenen berging, wordt momenteel gebruikt als hondentrimsalon, kan desgewenst eenvoudig worden veranderd tot werkruimte, atelier of hobbyruimte.
Ligging:
De woning ligt in de Hoven, op slechts 10 minuten fietsen van de historische binnenstad van Zutphen met haar gezellige winkels, restaurants en culturele voorzieningen. Ook scholen, sportfaciliteiten en openbaar vervoer zijn in de directe omgeving te vinden.
Kortom: een charmante, goed onderhouden vrijstaande woning met veel leefruimte, een zonnige tuin en tal van mogelijkheden. Een heerlijke plek voor wie rustig wil wonen, met de stad binnen handbereik.
Aan deze objectinformatie kunnen geen rechten worden ontleend en deze informatie kan niet als aanbieding of offerte worden beschouwd. Indien u een aanbieding wenst, kan de makelaar deze, na goedkeuring door de opdrachtgever, op basis van specifieke gegevens verzorgen.
Kenmerken
Overdracht
- Vraagprijs
- € 525.000,- k.k.
- Aangeboden sinds
- 14 november 2025
- Status
- Verkocht onder voorbehoud
Bouw
- Type
- Woonhuis
- Soort woning
- eengezinswoning
- Type woning
- vrijstaande woning
- Bouwjaar
- 1989
- Ligging
- aan rustige weg, in woonwijk
Oppervlakten en inhoud
- Woonopp.
- 97 m²
- Perceelopp.
- 493 m²
- Inhoud
- 368 m³
Indeling
- Kamers
- 5
- Slaapkamers
- 4
Energie
- Energielabel
- B
Buitenruimte
- Tuin oppervlakte
- 493
- Tuin
- tuin rondom
- Hoofd tuin
- achtertuin
- Hoofd tuin opp.
- 330 m²
- Tuin ligging
- west
Parkeergelegenheid
- Garage
- carport
