Wegtersweg 38J, 7556BR HENGELO
Huurprijs: € 1.490,- p.m.
Omschrijving
Moderne turn-key bedrijfsunit.
Algemeen:
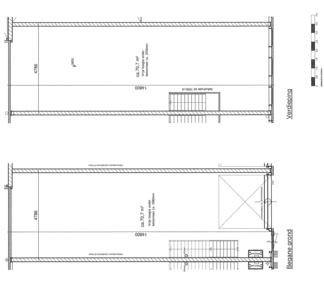
Op zichtlocatie aan de Wegtersweg gelegen bedrijfsunit met ca. 72 m² bedrijfsruimte op de begane grond en ca. 72 m² kantoorruimte op de verdieping. De unit kan eventueel geschakeld worden met naastgelegen unit K.
Bereikbaarheid:
De unit is gelegen op "Bedrijventerrein Westermaat-Zuid" tegen de A1.
Voorzieningen:
- 2 airco's voor koelen en verwarmen;
- stopcontacten;
- systeemplafonds;
- LED-verlichting;
- keukenblok wordt voor rekening verhuurder geplaatst naar keuze huurder;
- betonvloeren;
- vrije hoogte begane grond ca. 3.55 meter en verdieping ca. 3 meter;
- meterkast;
- 2 parkeerplaatsen.
Bestemmingsplan:
Het object maakt deel uit van bestemmingsplan "Bedrijventerrein Westermaat" en heeft de bestemming "Bedrijventerrein-Industrie".
Huurprijs:
€ 1.490,-- per maand, te vermeerderen met BTW.
Aanvaarding:
Per direct.
Aan deze objectinformatie kunnen geen rechten worden ontleend en deze informatie kan niet als aanbieding of offerte worden beschouwd. Indien u een aanbieding wenst, kan de makelaar deze, na goedkeuring door de opdrachtgever, op basis van specifieke gegevens verzorgen.
Kenmerken
Overdracht
- Huurprijs
- € 1.490,- p.m.
- Aangeboden sinds
- 24 oktober 2025
- Status
- beschikbaar
Bouw
- Type
- Bedrijfsruimte
- Bouwjaar
- 2024



