Maagdenburgstraat 32, 7421ZD DEVENTER
Vraagprijs: € 995.000,- k.k.
Omschrijving
Modern bedrijfsgebouw in gebruik ten behoeve van vleesverwerking (NVWA goedgekeurd en IFS gecertificeerd) gelegen op het bedrijventerrein "De Weteringen" nabij de A1.
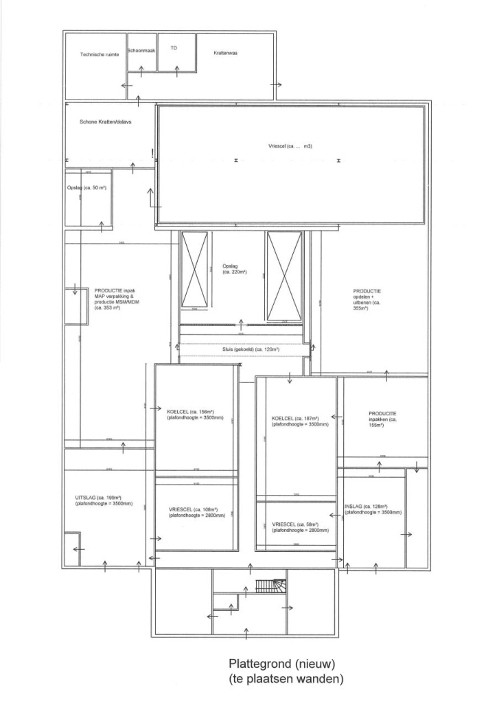
Indeling:
Ca. 214 m² entree, kantoren, kantine, was-/kleedruimtes in 2 lagen.
Ca. 975 m² koelcellen, vriescellen en productieruimtes.
Bereikbaarheid:
Zeer goed bereikbaar via de A1.
Het gebouw heeft 2 overheaddeuren in de voorgevel alsmede dubbele draaideur in de achtergevel.
Voorzieningen:
- verwarming;
- verlichting;
- airco;
- koel-/vriescellen;
- ca. 7 meter vrije hoogte;
- brandmeldinstallatie;
- camerabewaking;
- perslucht;
- vloergoten met vetafscheider en putten;
- etc.
Bestemmingsplan:
Het object maakt deel uit van bestemmingsplan "CHW bestemmingsplan Deventer, stad en dorpen deel C" en heeft de bestemming "bouwregel-34" en "bedrijventerrein - categorie 3.2".
Vraagprijs:
€ 995.000,-- k.k.
Aanvaarding:
In overleg.
Aan deze objectinformatie kunnen geen rechten worden ontleend en deze informatie kan niet als aanbieding of offerte worden beschouwd. Indien u een aanbieding wenst, kan de makelaar deze, na goedkeuring door de opdrachtgever, op basis van specifieke gegevens verzorgen.
Kenmerken
Overdracht
- Vraagprijs
- € 995.000,- k.k.
- Aangeboden sinds
- 20 oktober 2025
- Status
- beschikbaar
Bouw
- Type
- Bedrijfsruimte
- Bouwjaar
- 2000
