De Heurne 21, 7511GV ENSCHEDE
Vraagprijs: € 1.350.000,- k.k.
Omschrijving
Ruime winkelruimte met 2 verhuurde bovenwoningen op toplocatie aan De Heurne. De winkel komt eind 2025 leeg, de 2 woningen zijn verhuurd.
Indeling:
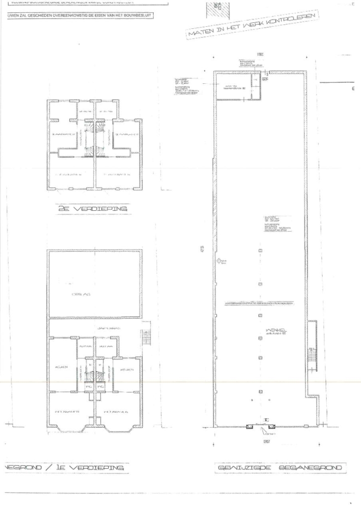
Begane grond: ca. 390 m² winkel met ca. 15 m² keuken, toilet en C.V.-ruimte. In de winkel is een opgang naar ca. 55 m² opslagruimte op de etage (eventueel om te bouwen naar woonruimte).
De 2 woningen op de etages zijn bereikbaar via de poort aan de rechterzijgevel met stalen trap naar de verdiepingen.
Indeling woningen:
Eerste verdieping: entree, keuken, toilet, woonkamer en apart eetgedeelte.
Tweede verdieping: overloop, 2 slaapkamers en een badkamer met douche en wastafel.
Zolder: 1 slaapkamer.
Oppervlaktes: ca. 85 en 95 m².
Bestemming:
Het object maakt deel uit van bestemmingsplan "Binnenstad 2016" met de bestemming "Detailhandel".
Vraagprijs:
€ 1.350.000.-- k.k.
Aanvaarding:
In overleg.
Aan deze objectinformatie kunnen geen rechten worden ontleend en deze informatie kan niet als aanbieding of offerte worden beschouwd. Indien u een aanbieding wenst, kan de makelaar deze, na goedkeuring door de opdrachtgever, op basis van specifieke gegevens verzorgen.
Kenmerken
Overdracht
- Vraagprijs
- € 1.350.000,- k.k.
- Aangeboden sinds
- 17 juli 2025
- Status
- beschikbaar
Bouw
- Type
- Winkelruimte
- Bouwjaar
- 1929

